Cheratte Hauteur - Maison 4 chambres avec jardin

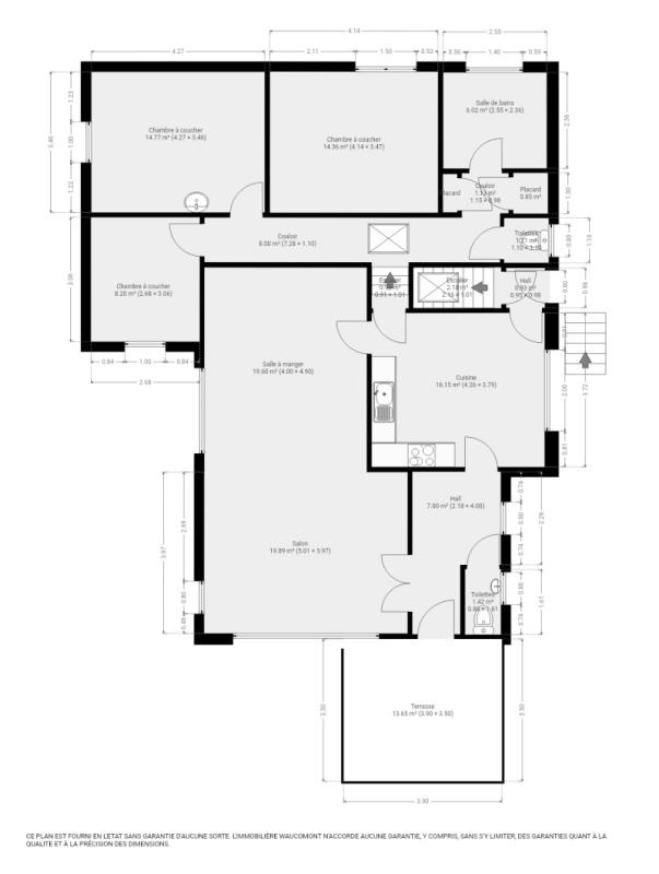
Spacieuse maison 4 façades à rafraîchir idélale pour profession libérale (+/- 224m² d'après PEB) 4 chambres avec jardin et dépendance située à Cheratte Hauteur dans une rue résidentielle calme. Elle se compose comme suit: Sous-sol: petit garage (+/-8m²), chaufferie (+/- 16m²), caves (+/- 37m²) sommairement aménagées en petit appartement avec entrée indépendante (toutefois le bien est repris comme maison unifamiliale à la matrice cadastrale) et jardin. Rez-de-chaussée: hall d'entrée, vaste séjour (+/- 38m²) et cuisine aménagée (four, taque vitrocéramique, hotte, évier). 1er étage: hall de nuit, 3 chambres (+/- 8 et 2x14m²), salle bains (baignoire, bidet, lavabo) et toilette indépendante. Châssis simple et double vitrage aluminium avec volets (en partie), chauffage central au mazout. R.C.: 1.497€, superficie totale parcelle: 623 m². PEB: G, E Spéc: 567 kWh/m².an, E totale: 44.612 kWh/an, n° 20250623018753. Informations données à titre indicatif et non contractuelles. Beaux volumes !! Agréable endroit calme!www.waucomont.be
Classe énergétique Énergie spécifique Énergie totale Émission de CO2 PEB No.
G 567kWh/m².an 44612kWh.an 140kg CO2/an 20250623018759

Informations générales

  • Type de bien Maisons / Propriétés
  • Sous-catégorie Maison
  • Disponibilité À l'acte
  • Etat À rafraîchir
  • Nombre d'étages 0
  • Nombre de façades 4

Informations sur l'extérieur

  • Surface parcellaire 623,00 m²
  • Garage 1
  • Terrasse 1
  • Surface terrasse 1 13 m²

Informations sur l'intérieur

  • Surface habitable 224,00 m²
  • Cuisine Oui
  • Type de cuisine Aménagée
  • Nombre de chambres 4
  • Nombre de salle de bain 1
  • Salle de douche 1
  • Type d'énergie du chauffage Mazout

Informations financières

  • Revenu cadastral 1497,00 €