Cheratte - Maison rénovée 2 ch., garage et jardin

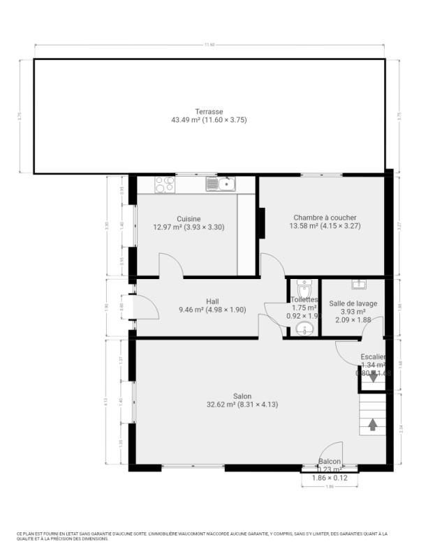
! OPTION ! OPTION ! Maison 3 façades rénovée (+/- 132m² d'après PEB) avec 2 spacieuses chambres, un garage et un jardin bien située à Cheratte hauteurs! Elle se compose comme suit: Sous-sol: caves (+/-30m²) et garage (+/- 34m² possibilité 2 voitures). Rez-de-chaussée: hall d'entrée, séjour (+/- 32m²), cuisine semi-équipée (taque vitrocéramique, hotte, four, lave-vaisselle, évier), 1 chambre (+/-13m²), buanderie, toilette indépendante, terrasse (+/- 43m²) et jardin orienté Ouest. 1er étage: hall de nuit (+/- 17m²), 1 chambre (+/-24m²) et salle de douches (douche à l'italienne, lavabo, wc). Châssis double vitrage PVC (volets électrique et moustiquaires en partie), chauffage central au gaz (chauffage sol électrique dans une des chambres), 21 panneaux photovoltaïques, citerne d'eau de pluie, électricité conforme, climatisations dans les chambres et le séjour. PEB : C, Spec: 235 kWh/m2.an, E totale : 31.091 kWh/an, n°20250109007533. R.C. : 852€. Superficie totale (terrain) : 420m². Belle situation ! Opportunité à saisir ! Informations données à titre indicatif et non-contractuelle. www.waucomont.be
Classe énergétique Énergie spécifique Énergie totale Émission de CO2 PEB No.
C 235kWh/m².an 31091kWh.an 36kg CO2/an 20250109007533

Informations générales

  • Type de bien Maisons / Propriétés
  • Sous-catégorie Maison
  • Disponibilité Date à convenir
  • Etat Bon
  • Nombre d'étages 0
  • Nombre de façades 3

Informations sur l'extérieur

  • Surface parcellaire 420,00 m²
  • Garage 1
  • Parking 2
  • Terrasse 1
  • Surface terrasse 1 43 m²

Informations sur l'intérieur

  • Surface habitable 132,00 m²
  • Cuisine Oui
  • Type de cuisine Equipée
  • Nombre de chambres 2
  • Salle de douche 1
  • Type d'énergie du chauffage Gaz

Informations financières

  • Revenu cadastral 852,00 €