Ensemble de 2 maisons! Nombreuses possibilités!

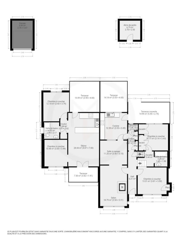
Ensemble de deux maisons offrant de nombreuses possibilités (profession libérale, investissement…) idéalement situées à Geer, à proximité de toutes les commodités. Maison 1 : charmant bungalow 2 chambres à rafraîchir (+/- 62m² d’après PEB) avec terrasses, jardin, passage latéral et garage. Il comprend un lumineux séjour (+/- 28m²) avec cuisine aménagée ouverte (cuisinière électrique comprenant une taque et un four, hotte, évier), 2 chambres (+/- 10 et 12m²) et une salle de bains (baignoire, lavabo, wc). PEB : G, E. spéc: 1.041 kWh/m².an, E. totale : 64.513 kWh/an, n° 20180703024131. Maison 2 : vaste maison mitoyenne à rafraîchir (+/- 216m² d’après PEB) avec terrasses, jardin et un garage. Elle comprend : Au Sous-sol : 3 caves et un garage (+/- 18m²). Au Rez-de-chaussée : hall d’entrée avec placard intégré et une toilette indépendante, spacieux séjour (+/- 30m²), cuisine semi-équipée (+/- 12m²) (four, taque vitrocéramique, frigo, hotte, évier). 1er étage : 2 chambres avec placard intégré (+/- 10 et 13m²), salle de douches (douche, lavabo). 2ème étage : 1 chambre avec un dressing/rangement (+/- 28m²), débarras et un grenier de rangement (+/- 22m²). PEB : F, E. spéc: 483 kWh/m².an, E. totale : 104.265 kWh/an, n° 20180703024099. Les 2 maisons comprennent: châssis double vitrage PVC et bois avec volet manuel en partie, chauffage central au mazout. R.C. total : 1.144€ (401€ pour la maison n°1 et 743€ la maison n°2), superficie totale (terrain) : 894m². Occasion à ne pas manquer ! Idéal pour investimment, maison kangourou, profession libérale. Informations données à titre indicatif et non contractuelles. www.waucomont.be

Classe énergétique Énergie spécifique Énergie totale Émission de CO2 PEB No.
G 1041kWh/m².an 64513kWh.an 259kg CO2/an 20180703024131

Informations générales

  • Type de bien Maisons / Propriétés
  • Sous-catégorie Maison
  • Disponibilité À l'acte
  • Etat À rafraîchir
  • Nombre d'étages 0
  • Nombre de façades 3

Informations sur l'extérieur

  • Surface parcellaire 894,00 m²
  • Garage 2
  • Terrasse 1
  • Surface terrasse 1 37 m²

Informations sur l'intérieur

  • Surface habitable 278,00 m²
  • Cuisine Oui
  • Type de cuisine Aménagée
  • Nombre de chambres 5
  • Salle de douche 2
  • Type d'énergie du chauffage Mazout

Informations financières

  • Revenu cadastral 1144,00 €