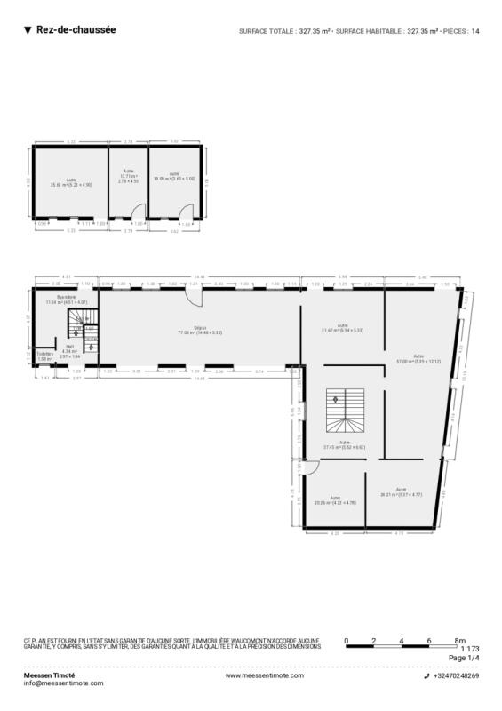
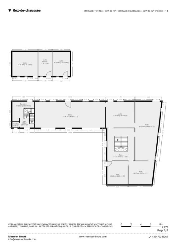
Spacieuse ferme au caractère authentique (+/- 667m² d'après plans) en cours de rénovation - anciennement la "Cour de Justice de Feneur" - avec dépendances et terrain pour une superficie totale de +/- 6.657 m² offrant de nombreuses possibilités d'aménagement. Le corps de logis (+/- 289 m² d'après plans) se compose de 4 chambres, un spacieux séjour (+/- 77m²) et un grand grenier (+/- 102m²). D'anciennes étables +/- 170 m² au sol, sur deux niveaux, sont également attenantes au corps de logis. La dépendance arrière mesure environ +/- 50 m² au sol et comprend 2 niveaux. Certains travaux ont déjà été réalisés (nouvelle toiture, châssis (en partie), ...). La prairie arrière est traversée par un chemin "GR". Nombreux détails de caractère!! R.C.: 641€. Superficie totale (terrain): +/- 6.657m². Superbe opportunité rare! - Situation unique! Informations données à titre indicatif et non contractuelles. www.waucomont.be
Informations générales
Type de bien
Maisons / Propriétés
Sous-catégorie
Ferme
Disponibilité
À l'acte
Etat
À rénover
Nombre d'étages
0
Nombre de façades
3
Informations sur l'extérieur
Surface parcellaire
6657,00 m²
Informations sur l'intérieur
Surface habitable
667,00 m²
Cuisine
Non
Type de cuisine
Sans
Nombre de chambres
4
Type d'énergie du chauffage
Aucun
Informations financières
Revenu cadastral
641,00 €
Partager ce bien sur les réseaux sociaux
Nous utilisons des cookies pour vous offrir la meilleure expérience sur notre site. Vous pouvez en savoir plus sur les cookies que nous utilisons ou les désactiver dans les
paramètres de cookies