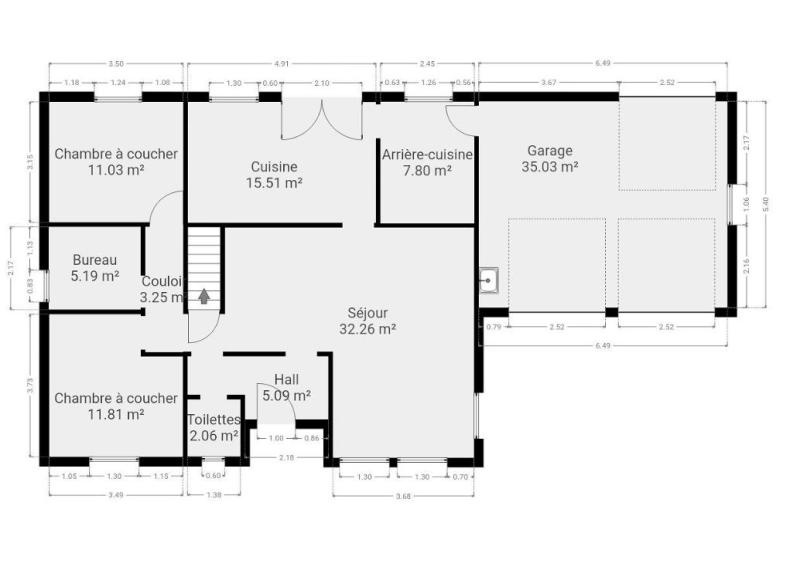
Villa à l'état de gros uvre (+/- 225m² selon plans) sur une belle parcelle de terrain de +/- 1.715m², idéalement située à Comblain-au-Pont et offrant de nombreuses possibilités daménagements. Permis durbanisme octroyé en avril 2003, toutefois les travaux nont jamais été finalisés. Les plans de permis prévoient : au Rez-de-chaussée : hall dentrée avec wc indépendant, séjour +/- 32m², espace cuisine +/- 15m², buanderie +/- 8m², 2 chambres (+/- 11 et 12m²) et une salle de douches. Au 1er étage : 3 espaces combles de +/- 100m² au total éventuellement aménageables. Le bien étant à l'état de gros oeuvre est exempté de PEB. R.C. actuel : 15€ (le bien nétant pas achevé le revenu cadastral définitif nest pas déterminé). Superficie totale (terrain) : 1.715m², possibilité dacquérir le terrain attenant, dune superficie de 1.715 m², situé en zone dhabitat, au prix de 145.000 €. Plans de permis disponibles sur demande à info@waucomont.be. Opportunité à saisir ! Nombreuses possibilités ! Informations données à titre indicatif et non-contractuelles! www.waucomont.be
Informations générales
Type de bien
Maisons / Propriétés
Sous-catégorie
Villa
Disponibilité
À l'acte
Etat
À rénover
Année de construction
2003
Nombre d'étages
0
Nombre de façades
4
Informations sur l'extérieur
Surface parcellaire
1715,00 m²
Garage
2
Environnement
Campagne isolée
Informations sur l'intérieur
Surface habitable
225,00 m²
Cuisine
Oui
Type de cuisine
Aménagée
Nombre de chambres
4
Nombre de salle de bain
2
Type d'énergie du chauffage
Aucun
Informations financières
Revenu cadastral
15,00 €
Partager ce bien sur les réseaux sociaux
Nous utilisons des cookies pour vous offrir la meilleure expérience sur notre site. Vous pouvez en savoir plus sur les cookies que nous utilisons ou les désactiver dans les
paramètres de cookies