HOUSSE - Maison 3 ch. avec jardin

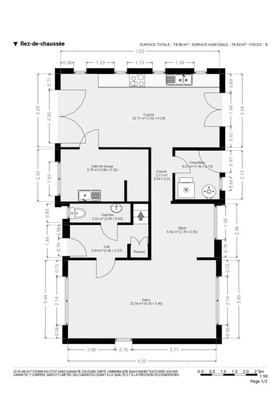
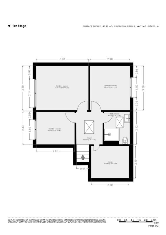
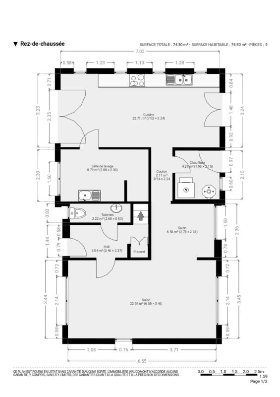
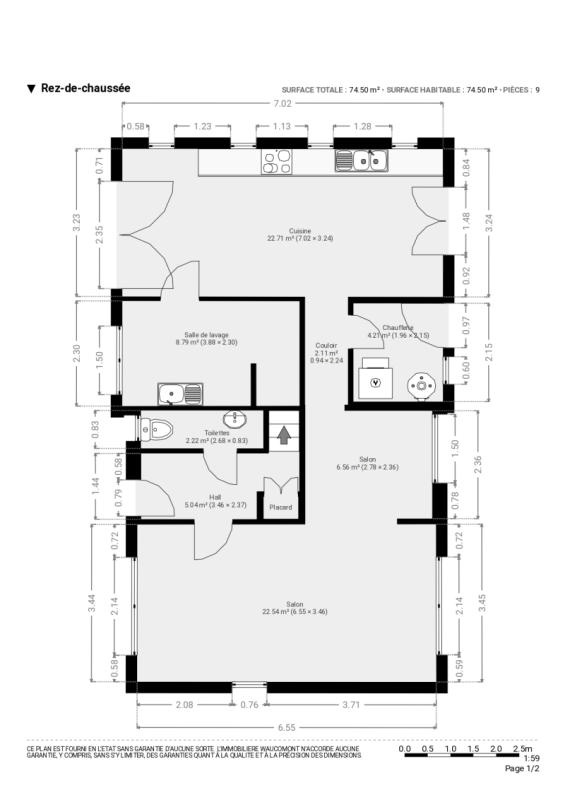
! OPTION ! OPTION ! Agréable maison 4 façades (+/- 138m² d'après PEB) 2 à 3 chambres avec jardin située dans un quartier résidentiel calme du village de Housse. Elle se compose comme suit: Sous-sol: caves (+/- 12m²) et garage (+/- 22m²) sommairement aménagé en cuisine (taque vitrocéramique, hotte, évier). Rez-de-chaussée: hall d'entrée, séjour (+/- 28m²), toilette indépendante, terrasse et jardin. 1er étage: hall de nuit, petite chambre/dressing (+/- 6m²), 2 chambres (+/- 9 et 12m²) et salles de douches (douche, bidet, lavabo). Combles de rangement. Châssis simple/double vitrage bois et double vitrage PVC, chauffage central au mazout, 20 panneaux photovoltaïques,... PEB : G, E Spéc: 541 kWh/m².an, E totale : 74.831 WH/an, n° 20250623018894. R.C. : 624€, superficie terrain : 607m². Agréable endroit calme! Belle situation! Informations données à titre indicatif et non contractuelles.www.waucomont.be.
Classe énergétique Énergie spécifique Énergie totale Émission de CO2 PEB No.
G 541kWh/m².an 74831kWh.an 134kg CO2/an 20250623018894

Informations générales

  • Type de bien Maisons / Propriétés
  • Sous-catégorie Maison
  • Disponibilité À l'acte
  • Etat À rafraîchir
  • Nombre d'étages 0
  • Nombre de façades 4

Informations sur l'extérieur

  • Surface parcellaire 607,00 m²

Informations sur l'intérieur

  • Surface habitable 138,00 m²
  • Cuisine Oui
  • Type de cuisine Aménagée
  • Nombre de chambres 3
  • Salle de douche 1
  • Type d'énergie du chauffage Mazout

Informations financières

  • Revenu cadastral 624,00 €