Jolie maison 3 à 4 ch avec garage et jardin

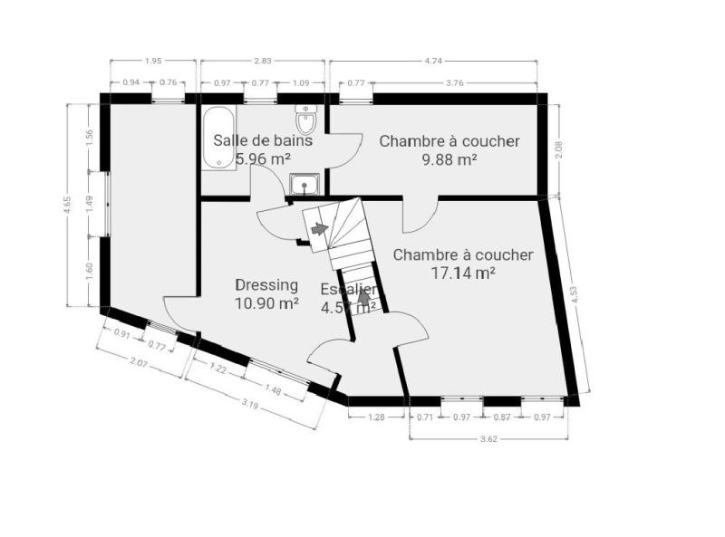
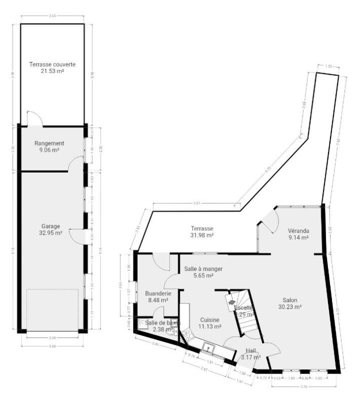
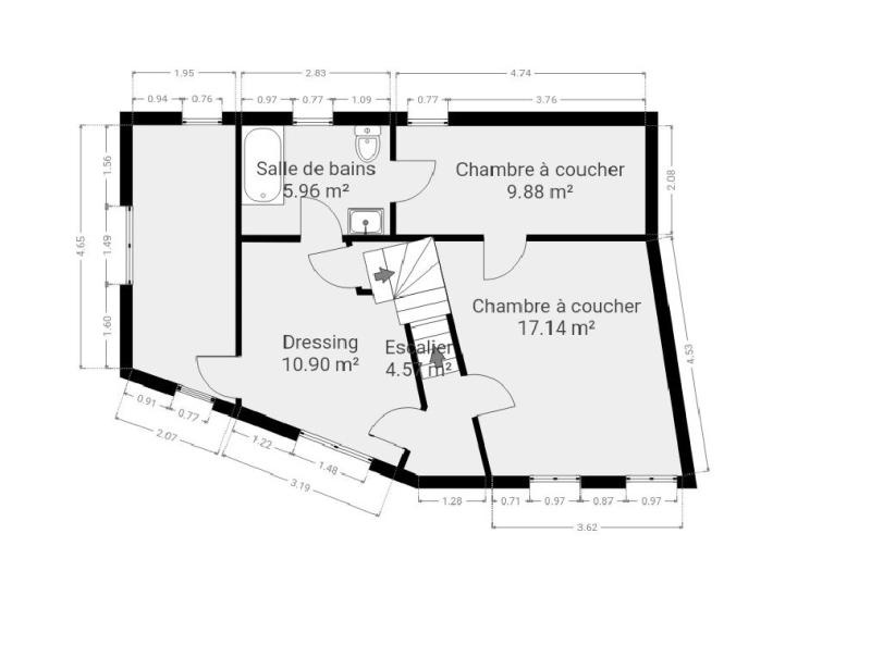
OPTION! OPTION ! Spacieuse et charmante maison (+/- 228m² d’après PEB), 3 à 4 chambres, idéalement située au « Bois Chaffoux » à proximité de Manaihant (Battice) disposant d’un joli jardin et d’une terrasse. Elle se compose comme suit : Rez-de-Chaussée : hall d’entrée, agréable séjour (+/- 36m²), cuisine équipée +/-11m² (four, taque, hotte), buanderie et salle de douches (douche, lavabo, wc). 1er étage : grand hall de nuit : (+/- 11m²), 3 chambres (+/- 10, 10 et 17m²) et salle de bains (baignoire, lavabo, wc). 2ème étage : spacieuse chambre (+/- 21m²) et un grenier (+/-21m²). A l’extérieur, vous bénéficierez d’un joli jardin et d’une terrasse idéalement orientée, d’un garage (+/-32m²), d'un espace rangement (+/- 9m²) et d'une terrasse couverte (+/- 21m²). Chauffage électrique, poêle à pellets, châssis double vitrage bois. PEB D, E Spéc: 266kWh/m².an, E totale 56 140kWh/an, n° 20251027028232. R.C. : 929€, Superficie totale (terrain) : 324m². Informations données à titre indicatif et non contractuelles. Superbe maison dans un quartier calme! Beaux volumes! www.waucomont.be
Classe énergétique Énergie spécifique Énergie totale Émission de CO2 PEB No.
D 266kWh/m².an 56140kWh.an 7kg CO2/an 20251027028232

Informations générales

  • Type de bien Maisons / Propriétés
  • Sous-catégorie Maison
  • Disponibilité Date à convenir
  • Etat À rafraîchir
  • Nombre d'étages 2
  • Nombre de façades 3

Informations sur l'extérieur

  • Surface parcellaire 324,00 m²
  • Garage 1
  • Parking 2
  • Environnement Campagne isolée
  • Terrasse 1
  • Surface terrasse 1 25 m²

Informations sur l'intérieur

  • Surface habitable 228,00 m²
  • Cuisine Oui
  • Type de cuisine Equipée et aménagée
  • Nombre de chambres 4
  • Nombre de salle de bain 2
  • Type d'énergie du chauffage Electricité

Informations financières

  • Revenu cadastral 929,00 €