Jolie maison 4 chambres avec un double garage

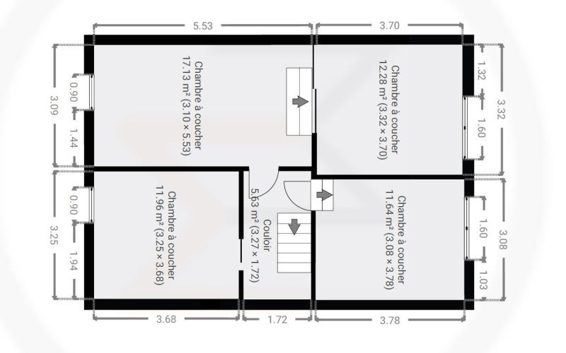
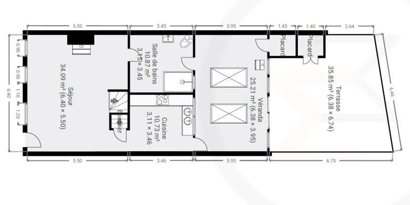
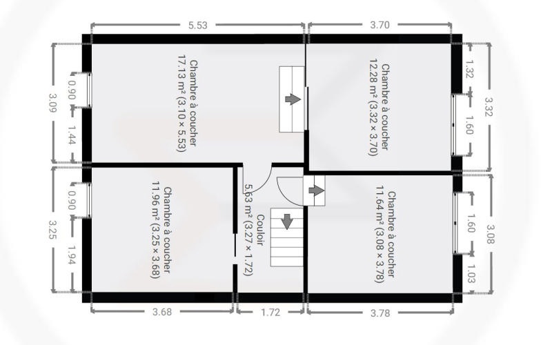
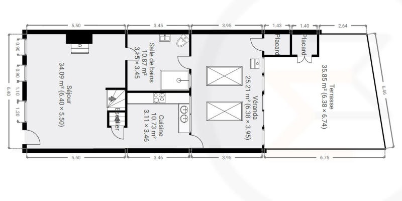
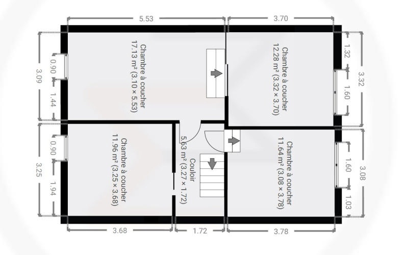
! OPTION ! OPTION ! Charmante maison bien aménagée (+/-138m² d’après PEB) 3 à 4 chambres avec avec double garage et jardin idéalement située au centre de Flémalle. La maison se compose comme suit : Sous-sol : caves (+/- 7 et 11m²). Rez-de-chaussée : séjour agréable (+/- 34m²), cuisine équipée (taque vitrocéramique, hotte, frigo, four/micro-onde), véranda (+/- 25m²) avec accès direct à la terrasse et au jardin et salle de bains (douche italienne, lavabo et wc). Au 1er étage : 4 chambres (3 de +/- 12 m² et 1 de 17m²). A l’extérieur, vous bénéficierez d’un accès au jardin par l’arrière de la propriété via les deux garages, d’une terrasse, d’une serre et d’abris de jardin. Châssis double vitrage bois, chauffage central au gaz, poêle à bois et pellets, panneaux photovoltaïques (12). RC: 697€, Superficie totale (terrain): +/- 286m². PEB : E : E spec: 344kWh/m².an, E totale: 47.489kWh/an n°20201008026415. Plans disponibles sur demande. A ne pas manquer ! Charme et caractère au rendez-vous. Informations et plans donnés à titre indicatif et non contractuels. www.waucomont.be
Classe énergétique Énergie spécifique Énergie totale Émission de CO2 PEB No.
E 344kWh/m².an 47489kWh.an 59kg CO2/an 20201008026415

Informations générales

  • Type de bien Maisons / Propriétés
  • Sous-catégorie Maison
  • Disponibilité À l'acte
  • Etat Bon
  • Nombre d'étages 1
  • Nombre de façades 2

Informations sur l'extérieur

  • Surface parcellaire 286,00 m²
  • Garage 2
  • Environnement Urbain
  • Terrasse 1
  • Surface terrasse 1 36 m²

Informations sur l'intérieur

  • Surface habitable 138,00 m²
  • Cuisine Oui
  • Type de cuisine Equipée
  • Nombre de chambres 4
  • Salle de douche 1
  • Type d'énergie du chauffage Gaz

Informations financières

  • Revenu cadastral 697,00 €