Jolie maison 4ch avec jardin et garage

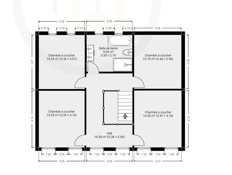
! OPTION ! OPTION ! Spacieuse maison (+/- 211m² d’après PEB), 4 chambres, idéalement située dans le centre de José (Battice) disposant d’un joli jardin et d’une terrasse. Elle se compose comme suit : Rez-de-chaussée : un hall d’entrée +/- 13m², un WC indépendant, un séjour +/- 28m², une cuisine équipée +/-13m² (taque induction, hotte, four, lave-vaisselle, frigo), une buanderie/arrière cuisine +/-14m² et un bureau +/- 14m². Au 1er étage : un hall de nuit +/- 18m², 4 chambres (13, 14, 14 et 14m²) et une salle de bain (baignoire, douche, deux éviers et WC). Au 2ème étage : 3 greniers éventuellement aménageables +/- 90m². A l’extérieur, vous bénéficierez d’une spacieuse terrasse de +/- 42m² avec accès direct au jardin, d’un garage et d’un atelier rangement. Chauffage central mazout (chauffage sol séjour), poêle à pellet, châssis double vitrage PVC, 18 panneaux photovoltaïques, toiture de 2008. PEB B, E Spéc: 168kWh/m².an, E totale 35.406kWh/an, n° 20250910007034. R.C. : 1.208€, Superficie totale (terrain) : 820m². Informations données à titre indicatif et non contractuelles. Superbe maison idéale pour famille avec enfants ! A découvrir ! www.waucomont.be
Classe énergétique Énergie spécifique Énergie totale Émission de CO2 PEB No.
B 168kWh/m².an 35406kWh.an 41kg CO2/an 20250910007034

Informations générales

  • Type de bien Maisons / Propriétés
  • Sous-catégorie Maison
  • Disponibilité Date à convenir
  • Etat Très bon
  • Nombre d'étages 2
  • Nombre de façades 4

Informations sur l'extérieur

  • Surface parcellaire 820,00 m²
  • Garage 1
  • Environnement Campagne non-isolée
  • Terrasse 1
  • Surface terrasse 1 42 m²

Informations sur l'intérieur

  • Surface habitable 211,00 m²
  • Cuisine Oui
  • Type de cuisine Equipée et aménagée
  • Nombre de chambres 4
  • Nombre de salle de bain 1
  • Type d'énergie du chauffage Mazout

Informations financières

  • Revenu cadastral 1208,00 €