Jolie maison coup de coeur!

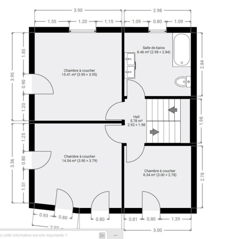
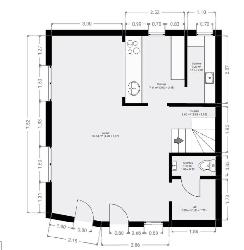
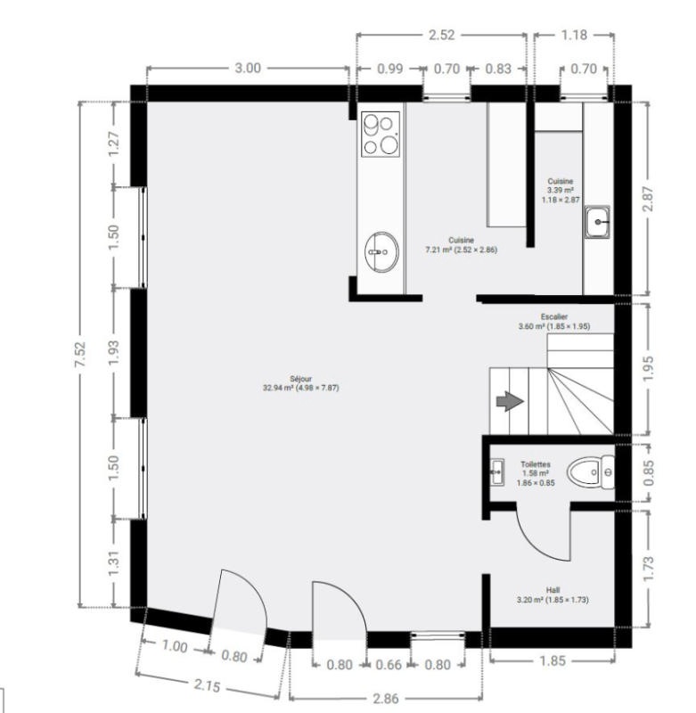
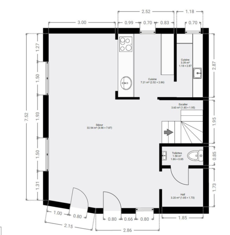
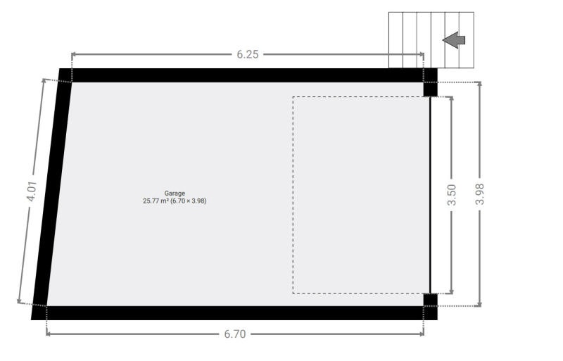
! OPTION ! OPTION ! Superbe maison semi-mitoyenne (+/- 167m² d’après PEB) 3 à 4 chambres, garage, jardin et terrasse. Idéalement située à proximité du centre de La Calamine, elle se compose comme suit : hall d’entrée, wc indépendant, agréable séjour (+/-33m²), cuisine équipée (four vapeur, frigo, congélateur, taque vitro, lave-vaisselle) et un spacieux garage (+/- 26m²). Au 1er étage : hall de nuit, 3 chambres (+/- 8, 15 et 15m²), salle de bain (baignoire, double lavabo et wc). Au 2ème étage : spacieuse chambre (+/- 23m²) ainsi que 2 greniers. A l’extérieur : un jardin et une terrasse à l’abri des regards. Chauffage central au gaz (chaudière à condensation), châssis double vitrage PVC, électricité conforme. PEB : C, E Spéc: 232 kWh/m².an, E totale 38.696 kWh/an, n° 20220919019398. R.C. : 1060€, superficie totale : 309 m². Informations données à titre indicatif et non contractuelles. Maison coup de cœur ! A découvrir! www.waucomont.be
Classe énergétique Énergie spécifique Énergie totale Émission de CO2 PEB No.
C 232kWh/m².an 38696kWh.an 48kg CO2/an 20220919019398

Informations générales

  • Type de bien Maisons / Propriétés
  • Sous-catégorie Maison
  • Disponibilité À l'acte
  • Etat Très bon
  • Rénovation 2017
  • Nombre d'étages 2
  • Nombre de façades 3

Informations sur l'extérieur

  • Surface parcellaire 309,00 m²
  • Garage 1
  • Parking 2
  • Environnement Campagne non-isolée
  • Terrasse 1
  • Surface terrasse 1 30 m²

Informations sur l'intérieur

  • Surface habitable 167,00 m²
  • Cuisine Oui
  • Type de cuisine Equipée et aménagée
  • Nombre de chambres 4
  • Nombre de salle de bain 1
  • Type d'énergie du chauffage Gaz

Informations financières

  • Revenu cadastral 1060,00 €