Magnifique maison 3ch, jardin, terrasse et garage

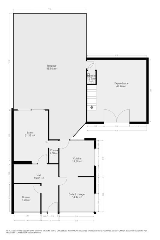
! OPTION ! Magnifique maison 4 façades (+/- 172m² d'après PEB) aménagée avec goût et des matériaux de qualité, 3 chambres, dépendance/garage +/- 45m² (possibilité profession libérale), grande terrasse et jardin située à Bassenge. Elle se compose comme suit : Sous-sol : caves. Rez-de-chaussée : vaste hall d'entrée (+/- 15 m²), toilette indépendante, lumineux séjour (+/- 21m²) avec poêle à pellets récent (+/-1an), cuisine équipée (taque-vitrocéramique, lave-vaisselle, four, évier, hotte), salle-à-manger (+/- 15m²), bureau (+/-9m²), spacieuse terrasse (+/- 95m²), vaste garage/dépendance (+/- 42m²) (possibilité profession libérale) et jardin. 1er étage : hall de nuit, 3 chambres (+/- 14m² et 2 de +/- 16m²), salle de bains (baignoire, douche italienne, double lavabo, wc, espace buanderie). Châssis double vitrage bois avec isolation acoustique, chauffage central mazout, poêle à pellets, 1 climatiseur réversible. PEB : D, Spec: 327 kWh/m2.an, E totale : 56135 kWh/an, n°20240817006004. R.C. : 1.124€. Superficie totale (terrain) : 1.435m². Coup de cœur assuré ! Idéal pour profession libérale ! Informations données à titre indicatif et non-contractuelle. ! www.waucomont.be

Classe énergétique Énergie spécifique Énergie totale Émission de CO2 PEB No.
D 327kWh/m².an 56135kWh.an 83kg CO2/an 20240817006004

Informations générales

  • Type de bien Maisons / Propriétés
  • Sous-catégorie Maison
  • Disponibilité Date à convenir
  • Etat Très bon
  • Année de construction 1964
  • Nombre d'étages 0
  • Nombre de façades 4

Informations sur l'extérieur

  • Surface parcellaire 1435,00 m²
  • Garage 1
  • Parking 3
  • Terrasse 1
  • Surface terrasse 1 95 m²

Informations sur l'intérieur

  • Surface habitable 172,00 m²
  • Cuisine Oui
  • Type de cuisine Equipée
  • Nombre de chambres 3
  • Nombre de salle de bain 1
  • Salle de douche 1
  • Type d'énergie du chauffage Mazout

Informations financières

  • Revenu cadastral 1124,00 €