Magnifique villa 4 façades à Battice

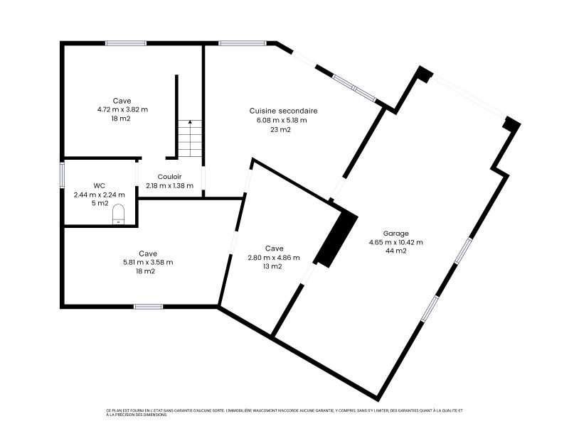
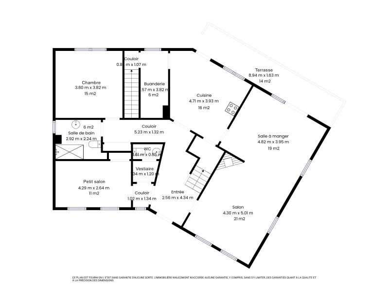
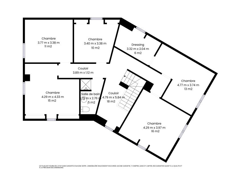
Magnifique et vaste villa de caractère réalisée avec des matériaux de qualité (+/- 307m² d’après PEB) 6 chambres, parking, jardin et terrasse avec vue panoramique, possibilité profession libérale, idéalement située dans un endroit calme à Battice. Elle se compose comme suit : Sous-sol : spacieux garage avec porte motorisée (+/- 44m²), atelier (+/- 23m²) et 4 caves (+/- 5, 13, 18 et 18m²). Rez-de-chaussée : charmant hall d’entrée avec toilette indépendante et vestibule, lumineux séjour avec un feu ouvert (+/- 40m²), cuisine équipée (+/- 16m²) (four, taque vitrocéramique, friteuse intégrée, lave-vaisselle, hotte, frigo, évier), petit salon/bureau (+/- 11m²), hall de nuit, 1 chambre (+/- 15m²), salle de douches (douche italienne, lavabo, bidet),débarras, buanderie, belle terrasse offrant une vue dégagée (+/- 14m²). 1er étage : hall de nuit, 5 chambres (+/- 10, 11, 13, 15 et 16m²) dont une avec un dressing/bureau (+/- 6m²) et une salle de douches (douche lavabo, WC). 2ème étage : grenier de rangement. A l’extérieur, superbe jardin arboré, 2 terrasses, abri de jardin et plusieurs emplacements de parking. Chauffage central mazout, châssis double vitrage bois, citerne d'eau de pluie, feu ouvert. R.C.: 1.591€, superficie totale terrain : 1.047 m². PEB : C, E Spéc: 212 kWh/m².an, E totale: 65.163 kWh/an, n° 20251031028324. Informations données à titre indicatif et non contractuelles. Magnifique situation! Opportunité exceptionnelle! www.waucomont.be

Classe énergétique Énergie spécifique Énergie totale Émission de CO2 PEB No.
C 212kWh/m².an 65163kWh.an 52kg CO2/an 20251031028324

Informations générales

  • Type de bien Maisons / Propriétés
  • Sous-catégorie Maison
  • Disponibilité À l'acte
  • Etat Très bon
  • Année de construction 1982
  • Nombre d'étages 3
  • Nombre de façades 4

Informations sur l'extérieur

  • Surface parcellaire 1047,00 m²
  • Garage 1
  • Parking 3
  • Terrasse 1
  • Surface terrasse 1 14 m²

Informations sur l'intérieur

  • Surface habitable 307,00 m²
  • Cuisine Oui
  • Type de cuisine Equipée
  • Nombre de chambres 6
  • Salle de douche 2
  • Type d'énergie du chauffage Mazout

Informations financières

  • Revenu cadastral 1591,00 €