Magnifique villa 4 façades avec piscine à Saint-André

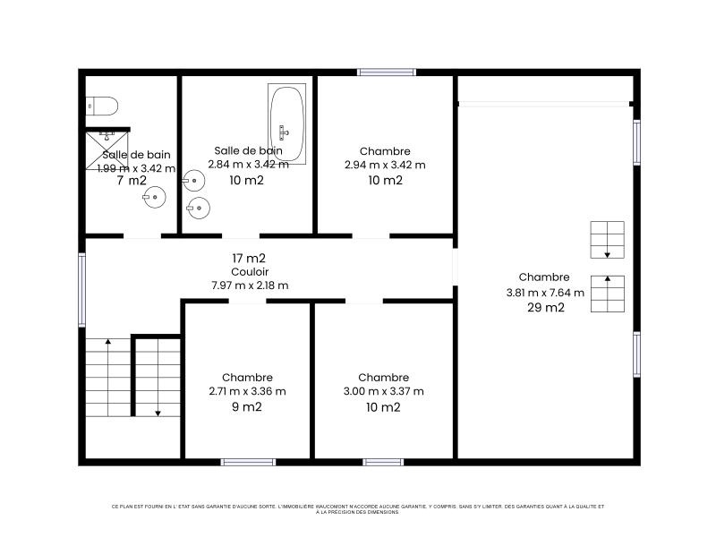
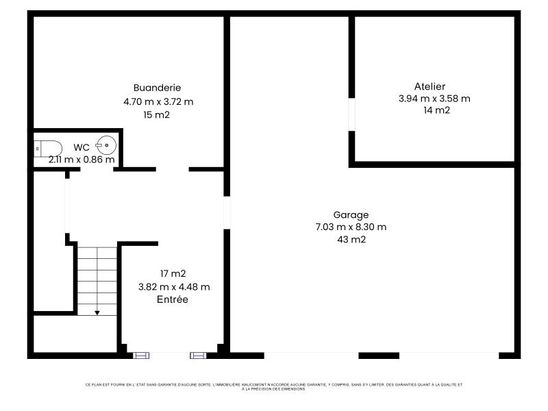
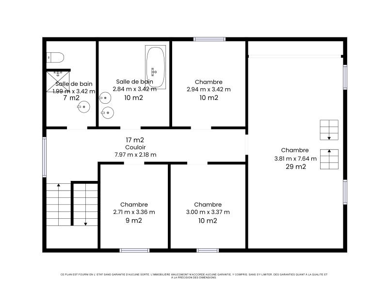
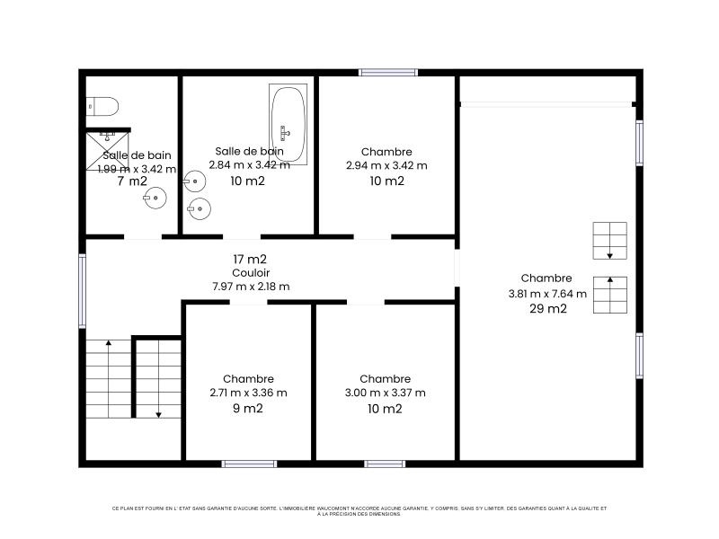
OPTION! OPTION! Magnifique villa 4 façades avec piscine offrant une vue imprenable sur la campagne (+/- 296m² d'après PEB), 4 chambres, garage 2 voitures, terrasse et vaste jardin arboré idéalement située à Saint-André. Elle se compose comme suit:Rez-de-chaussée : hall d’entrée avec toilette indépendante, buanderie (+/- 15m²), cave (+/- 14m²) et un grand garage 2 voitures (+/- 43m²). Au 1er étage : lumineux et spacieux séjour avec cassette à bois (+/- 50m²), cuisine équipée (cuisinière avec four et taque vitrocéramique, hotte, lave-vaisselle, évier), bureau (+/-7m²), buanderie (+/-12m²), véranda avec poêle à bois (+/- 19m²). Au 2ème étage : hall de nuit, 4 chambres (+/- 9, 10, 10 et 29m²), salle de bains (baignoire, 2 lavabos), salle de douches (douche, lavabo, wc). Au 3ème étage : grenier de rangement. À l’extérieur : une belle terrasse et un agréable jardin arboré et bien orienté avec une piscine. Chauffage central au mazout, châssis double vitrage bois, électricité conforme, 15 panneaux photovoltaïques. PEB : C, E. spéc: 224 kWh/m².an, E. totale : 66.298 kWh/an, n°20251003012155. R.C. : 1.568€. Superficie totale : 1.537m². Magnifique propriété ! Coup de cœur assuré ! Informations et plans indicatifs donnés à titre indicatif et non contractuels. www.waucomont.be
Classe énergétique Énergie spécifique Énergie totale Émission de CO2 PEB No.
C 224kWh/m².an 66298kWh.an 55kg CO2/an 20251003012155

Informations générales

  • Type de bien Maisons / Propriétés
  • Sous-catégorie Villa
  • Disponibilité Date à convenir
  • Etat À rafraîchir
  • Année de construction 1994
  • Nombre d'étages 0
  • Nombre de façades 4

Informations sur l'extérieur

  • Surface parcellaire 1537,00 m²
  • Garage 2

Informations sur l'intérieur

  • Surface habitable 296,00 m²
  • Cuisine Oui
  • Type de cuisine Aménagée
  • Nombre de chambres 4
  • Nombre de salle de bain 1
  • Salle de douche 1
  • Type d'énergie du chauffage Mazout

Informations financières

  • Revenu cadastral 1568,00 €