Maison 2 ch. avec jardin - centre de Dalhem

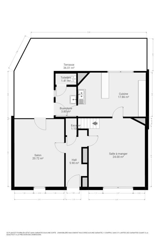
Belle maison mitoyenne à rénover (+/- 186m² d'après PEB) 2 chambres bénéficiant d'une belle situation au centre du village de Dalhem. Elle se compose comme suit: Sous-sol: cave (+/- 25m²). Rez-de-chaussée: hall d'entrée, salon (20m²), salle à manger (+/- 24m²), cuisine aménagée (évier,hotte), buanderie, toilette indépendante, terrasse (+/- 36m²) et jardin. 1er étage: hall de nuit, 2 chambres (+/- 12 et 24m²), salle de bains (baignoire, wc, lavabo) et dressing. Châssis simple vitrage bois, chauffage via convecteur gaz et poêle à pellets. PEB : F, E Spéc: 494 kWh/m².an, E totale : 91.940 WH/an, n° 20251219014961. R.C. : 453€. Superficie terrain : 323m². Vente soumise à autorisation du juge compétent. Idéal pour 1ère acquisition! Informations données à titre indicatif et non contractuelles.www.waucomont.be.
Classe énergétique Énergie spécifique Énergie totale Émission de CO2 PEB No.
F 494kWh/m².an 91940kWh.an 4kg CO2/an 20251219014961

Informations générales

  • Type de bien Maisons / Propriétés
  • Sous-catégorie Maison
  • Disponibilité À l'acte
  • Etat À rénover
  • Nombre d'étages 0
  • Nombre de façades 2

Informations sur l'extérieur

  • Surface parcellaire 323,00 m²
  • Terrasse 1
  • Surface terrasse 1 36 m²

Informations sur l'intérieur

  • Surface habitable 186,00 m²
  • Cuisine Oui
  • Type de cuisine Aménagée
  • Nombre de chambres 2
  • Nombre de salle de bain 1
  • Type d'énergie du chauffage Gaz

Informations financières

  • Revenu cadastral 453,00 €