Maison 2 chambres avec jardin à Vivegnis

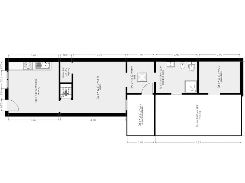
Agréable maison semi-mitoyenne 2 chambres (+/- 106 m² d'après PEB) avec beau jardin en longueur située au calme à Vivegnis, à proximité de toutes les commodités commerciales de Herstal. Elle se compose comme suit : Sous-sol : cave. Rez-de-chaussée : entrée aménagée sur le passage latéral, hall d'entrée, agréable salon (+/- 15 m²), cuisine séparée (+/- 13 m²) meublée (cuisinière au gaz, hotte, four, frigo et partie congélateur), salle de bains (douche, lavabo, wc et bidet), grande terrasse avec remise, terrasse couverte et grand jardin. 1er étage : 2 chambres (+/- 14 m² et 13 m²). 2 ème étage : spacieux grenier (+/- 32 m²). Installation électrique conforme. Chauffage central au gaz de ville de 2024, châssis bois simple vitrage et châssis PVC double vitrage. Volets en partie. R.C. : 349 €, Superficie totale terrain: 305 m². PEB: G, E spéc: 776 kWh/m².an, E totale: 82 002 kWh/an, n°20190210011010. Idéal comme premier achat ou investissement! Informations données à titre indicatif et non contractuelles. www.waucomont.be
Classe énergétique Énergie spécifique Énergie totale Émission de CO2 PEB No.
G 776kWh/m².an 82002kWh.an 147kg CO2/an 20190210011010

Informations générales

  • Type de bien Maisons / Propriétés
  • Sous-catégorie Maison
  • Disponibilité À l'acte
  • Etat Bon
  • Nombre d'étages 0
  • Nombre de façades 3

Informations sur l'extérieur

  • Surface parcellaire 305,00 m²
  • Terrasse 1
  • Surface terrasse 1 23 m²

Informations sur l'intérieur

  • Surface habitable 106,00 m²
  • Cuisine Oui
  • Type de cuisine Aménagée
  • Nombre de chambres 2
  • Nombre de salle de bain 1
  • Type d'énergie du chauffage Gaz

Informations financières

  • Revenu cadastral 349,00 €