Maison 2ch, parking et jardin à Jupille

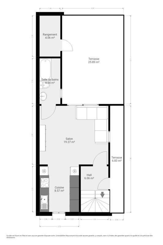
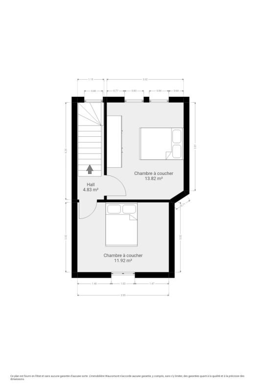
Située à Jupille, charmante maison semi-mitoyenne à rafraîchir (+/- 79m² d'après PEB) avec passage latéral, 2 chambres, avec avec agréable terrasse et grand jardin. Elle se compose comme suit: Sous-sol: une cave (+/- 17m²). Rez-de-chaussée: hall d'entrée, séjour (+/- 28m²) avec cuisine ouverte semi- équipée (taque de cuisson, four, hotte), salle de bains (baignoire, lavabo, wc). 1er étage: hall de nuit, 2 chambres (+/- 12 et 14m²). Le bien dispose également à l'extérieur d'une belle terrasse (+/- 25m²) avec local rangement, d'un beau jardin et d'un emplacement de parking à l'avant de la maison. Châssis double vitrage PVC (avec volets en partie), chauffage central au gaz. Le bien est actuellement loué 720€/mois. Informations données à titre indicatif et non contractuelles. Idéal pour jeune couple ou 1er achat! www,waucomont.be

Classe énergétique Énergie spécifique Énergie totale Émission de CO2 PEB No.
G 600kWh/m².an 47339kWh.an 110kg CO2/an 20190828006814

Informations générales

  • Type de bien Maisons / Propriétés
  • Sous-catégorie Maison
  • Disponibilité Date à convenir
  • Etat À rafraîchir
  • Nombre d'étages 1
  • Nombre de façades 3

Informations sur l'extérieur

  • Surface parcellaire 225,00 m²
  • Parking 1
  • Terrasse 1
  • Surface terrasse 1 25 m²

Informations sur l'intérieur

  • Surface habitable 79,00 m²
  • Cuisine Oui
  • Type de cuisine Aménagée
  • Nombre de chambres 2
  • Nombre de salle de bain 1
  • Type d'énergie du chauffage Gaz

Informations financières

  • Revenu cadastral 299,00 €