Maison 2chambres avec garage et jardin

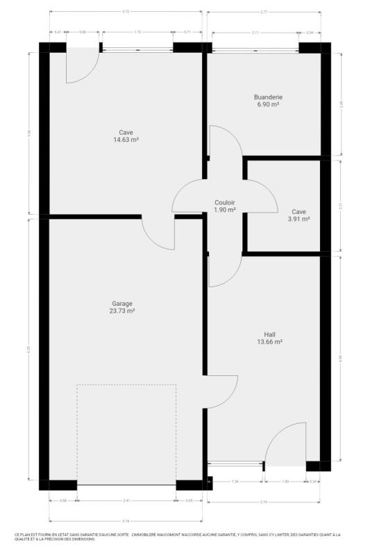
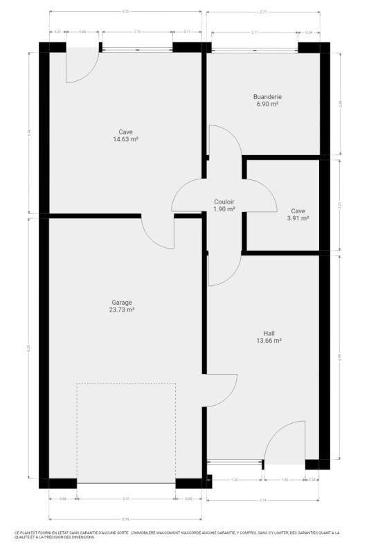
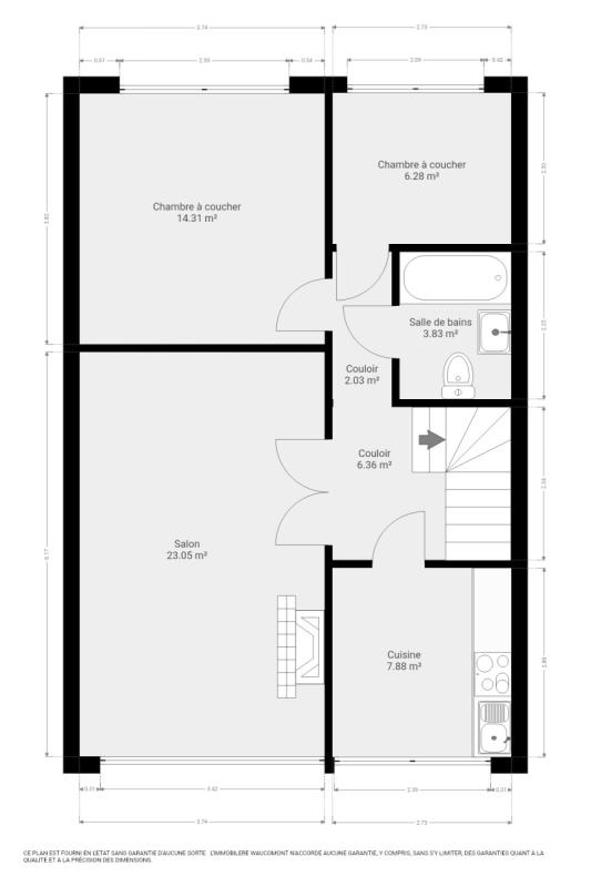
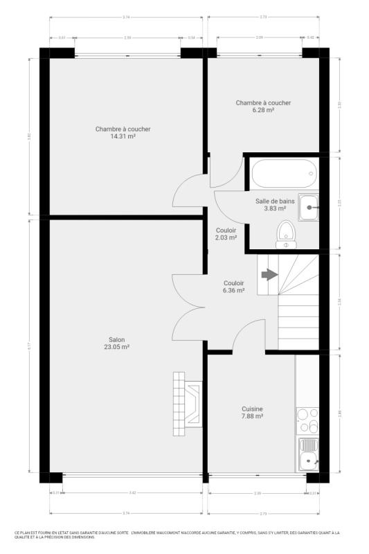
Charmante maison bel étage (+/- 154m² d'après PEB) 2 chambres, bureau (idéal pour profession indépendante), garage et beau jardin idéalement située dans un agréable quartier résidentiel àCheratte Hauteur. Elle se compose comme suit: Rez-de-chaussée: vaste hall d'entrée (+/- 13m²), bureau (+/- 14m²) avec accès au jardin, garage (avec porte sectionnelle motorisée), buanderie, local technique/ chaufferie. 1er étage : hall de jour, lumineux séjour (+/-24m²), cuisine équipée (frigo, four, taque électrique, hotte), 2 chambres (+/- 14 et 7m²) dont une plus petite (bureau/dressing/chambre d'enfant), salle de bains (baignoire, lavabo, wc) . Chauffage central mazout, châssis double vitrage bois et PVC, avec volets à l'avant, citerne d'eau de pluie. R.C.: 850€, Superficie totale (parcelle): 218m². PEB: E, E Spéc: 341 kWh/m².an, E totale: 52.570 kWh/an, n°20260121011916.Belle situation! Agréable endroit calme! Informations données à titre indicatif et non contractuelles. www.waucomont.be

Classe énergétique Énergie spécifique Énergie totale Émission de CO2 PEB No.
E 341kWh/m².an 52570kWh.an 85kg CO2/an 20260121011916

Informations générales

  • Type de bien Maisons / Propriétés
  • Sous-catégorie Maison
  • Disponibilité À l'acte
  • Etat À rafraîchir
  • Année de construction 1968
  • Nombre d'étages 1
  • Nombre de façades 3

Informations sur l'extérieur

  • Surface parcellaire 218,00 m²
  • Garage 1
  • Parking 1

Informations sur l'intérieur

  • Surface habitable 154,00 m²
  • Cuisine Oui
  • Type de cuisine Aménagée
  • Nombre de chambres 2
  • Nombre de salle de bain 1
  • Type d'énergie du chauffage Mazout

Informations financières

  • Revenu cadastral 850,00 €