Maison 3 à 4 ch. avec beau jardin

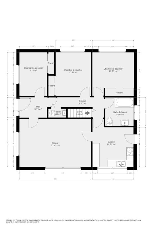
Située à Cheratte-Hauteurs, jolie maison (+/- 232 m² d'après PEB, caves et garage compris) 3 à 4 chambres idéalement située dans un quartier résidentiel calme et offrant une belle vue dégagée. Elle se compose comme suit: Sous-sol: garage (+/- 36m²) et cave (+/- 11m²). Rez-de-chaussée: hall d'entrée, agréable séjour (+/- 23m²) avec poêle à bois, cuisine semi-équipée, 3 chambres (+/- 8m² et 2 de +/-10m²), salle de bains (baignoire, lavabo, wc), toilette indépendante et beau jardin bien entretenu. Grenier actuellement aménagé en 1 chambre et une pièce de rangement. Châssis double vitrage bois et PVC (en majorité) avec volets (électriques en partie), chauffage central au mazout. PEB : D, E Spéc: 302 kWh/m².an, E totale : 70.143 kWh/an, n° 20260305018900. R.C. : 1.023€, Superficie totale (terrain): 735m². Agréable endroit!! Informations données à titre indicatif et non contractuelles.www.waucomont.be

Classe énergétique Énergie spécifique Énergie totale Émission de CO2 PEB No.
D 302kWh/m².an 70143kWh.an 75kg CO2/an 20260305018900

Informations générales

  • Type de bien Maisons / Propriétés
  • Sous-catégorie Maison
  • Disponibilité À l'acte
  • Etat À rafraîchir
  • Année de construction 1965
  • Nombre d'étages 0
  • Nombre de façades 4

Informations sur l'extérieur

  • Surface parcellaire 735,00 m²
  • Garage 1
  • Parking 2

Informations sur l'intérieur

  • Surface habitable 232,00 m²
  • Cuisine Oui
  • Type de cuisine Aménagée
  • Nombre de chambres 4
  • Nombre de salle de bain 1
  • Type d'énergie du chauffage Mazout

Informations financières

  • Revenu cadastral 1023,00 €