Maison 3 à 4 ch. avec jardin, poss. profession libérale

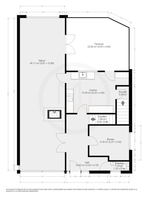
Dans un quartier résidentiel calme, à 5 minutes des commodités, découvrez cette jolie maison (+/- 176m² d'après PEB) 3 à 4 chambres sur un terrain de 817m². Idéale pour profession libérale, elle se compose comme suit: Sous-sol: caves (+/- 13m²) et garage (+/- 26m²). Rez-de-chaussée: hall d'entrée, vaste séjour (+/- 49m²), cuisine équipée (frigo, taque vitrocéramique, hotte, four, lave-vaisselle, évier), bureau/chambre (+/- 9m²), toilette indépendante, terrasse (+/- 22m²) et jardin orienté plein sud. 1er étage: hall de nuit, 3 chambres (+/- 11, 12 et 14m²), salle de bains (baignoire, double vasque, wc) et combles de rangement. Châssis double vitrage bois (avec volets), chauffage central au mazout. PEB : F, E Spéc: 465 kWh/m².an, E totale : 82.010 kWh/an, n° 20251006022301. R.C. : 1.203€, Superficie totale (terrain): 817m². Idéal pour profession libérale! Opportunité à saisir ! Informations données à titre indicatif et non contractuelles.www.waucomont.be

Classe énergétique Énergie spécifique Énergie totale Émission de CO2 PEB No.
F 465kWh/m².an 82010kWh.an 115kg CO2/an 20251006022301

Informations générales

  • Type de bien Maisons / Propriétés
  • Sous-catégorie Maison
  • Disponibilité À l'acte
  • Etat À rafraîchir
  • Nombre d'étages 0
  • Nombre de façades 4

Informations sur l'extérieur

  • Surface parcellaire 817,00 m²
  • Garage 1
  • Terrasse 1
  • Surface terrasse 1 22 m²

Informations sur l'intérieur

  • Surface habitable 176,00 m²
  • Cuisine Oui
  • Type de cuisine Equipée
  • Nombre de chambres 4
  • Nombre de salle de bain 1
  • Type d'énergie du chauffage Mazout

Informations financières

  • Revenu cadastral 1203,00 €