Maison 3 à 4ch à renover à Cheratte

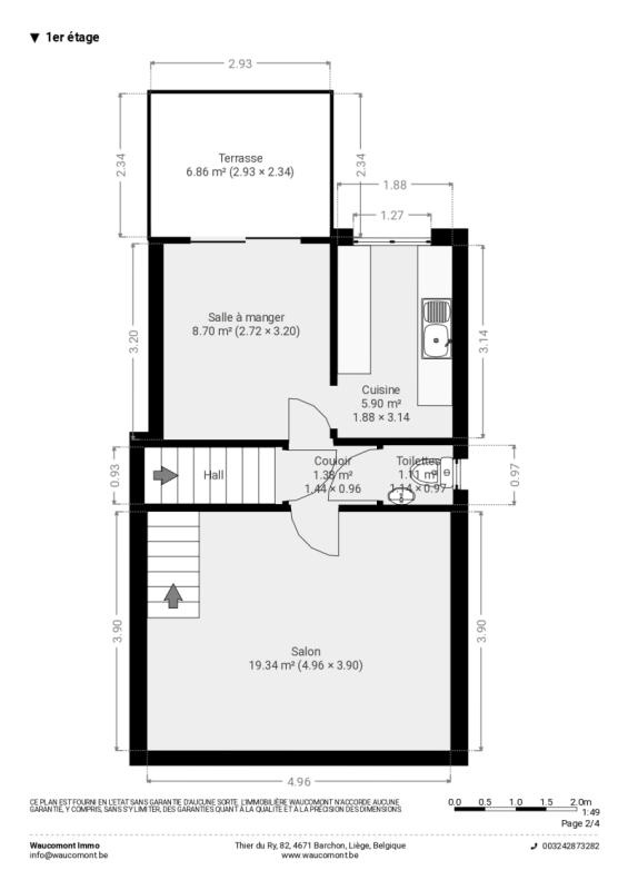
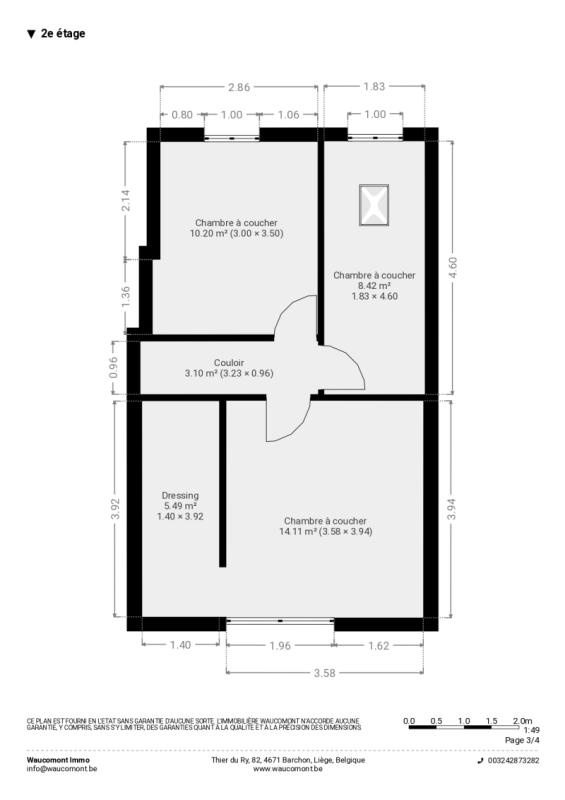
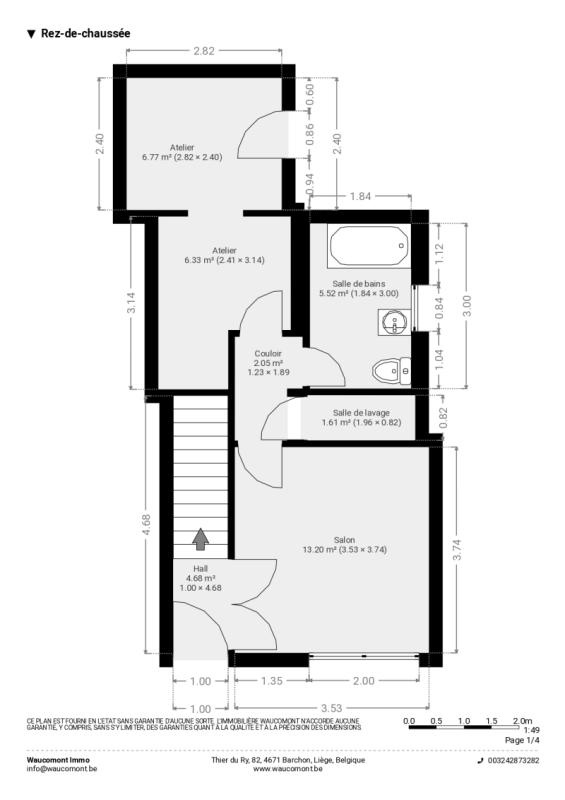
Maison à rénover entièrement (+/- 133 m² d'après PEB) 3 à 4 chambres avec atelier et petite terrasse couverte idéalement située dans une rue calme au centre de Cheratte à proximité de toutes les commodités. Elle se compose comme suit: Sous-sol : 1 cave. Rez de chaussée : hall d’entrée, salon (+/- 13m²), salle de bains (lavabo, baignoire, WC), buanderie et un atelier (+/- 13m²). 1er étage: pallier, séjour (+/- 20m²), salle a manger (+/- 9m²), cuisine, terrasse couverte (+/- 7m²) et une toilette indépendante . 2ème étage : pallier, 3 chambres (+/- 9, 10 et 14m²) et un débarras/dressing (+/- 5m²). 3ème étage : grenier de rangement. Chauffage via 3 convecteurs au gaz, châssis double vitrage PVC et simple vitrage bois avec volets en partie. PEB: F, E spéc: 478 kWh/m².an, E totale: 63.535 kWh/an, n° 20231216003160. R.C.: 329 €. Superficie totale (terrain): 100 m². Idéal pour premier achat ou investissement ! Informations données à titre indicatif et non contractuelles. www.waucomont.be

Classe énergétique Énergie spécifique Énergie totale Émission de CO2 PEB No.
F 478kWh/m².an 63535kWh.an 87kg CO2/an 20231216003160

Informations générales

  • Type de bien Maisons / Propriétés
  • Sous-catégorie Maison
  • Disponibilité À l'acte
  • Etat À rénover
  • Nombre d'étages 0
  • Nombre de façades 3

Informations sur l'extérieur

  • Surface parcellaire 100,00 m²
  • Terrasse 1
  • Surface terrasse 1 6 m²

Informations sur l'intérieur

  • Surface habitable 133,00 m²
  • Cuisine Oui
  • Type de cuisine Aménagée
  • Nombre de chambres 3
  • Nombre de salle de bain 1
  • Type d'énergie du chauffage Gaz

Informations financières

  • Revenu cadastral 329,00 €