Maison 3 ch., avec terrasses et garage - PEB: A !

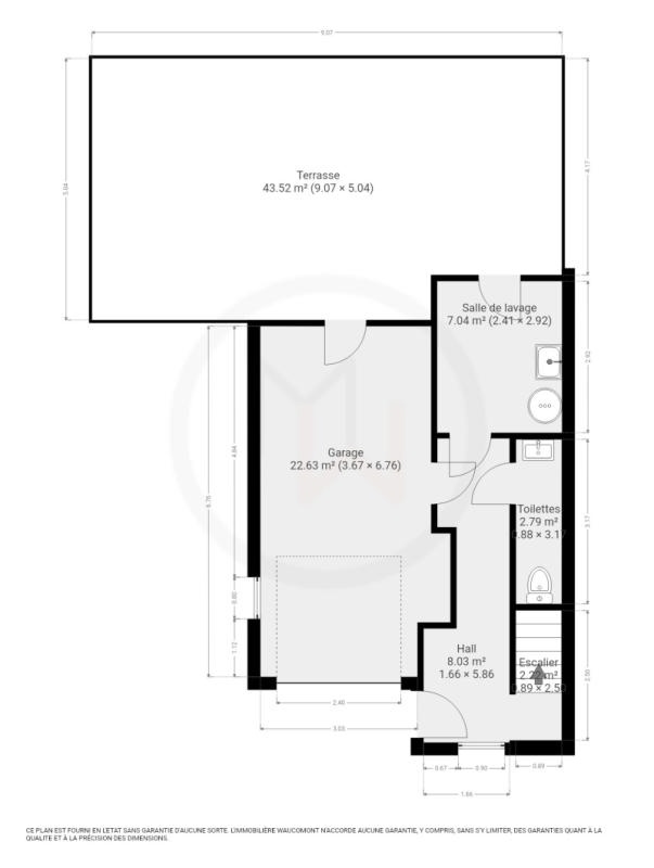
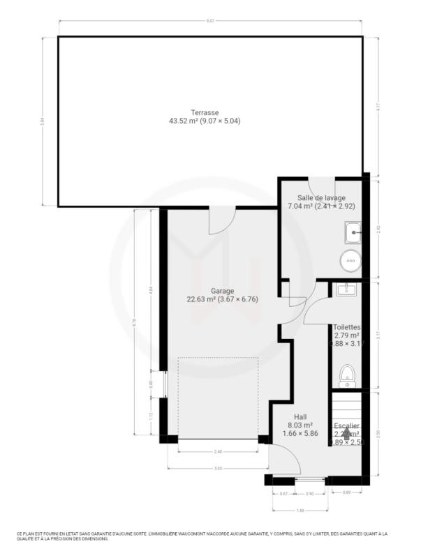
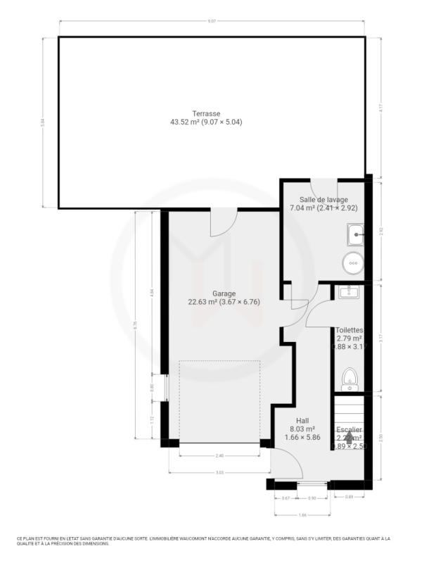
! OPTION ! OPTION ! Située dans un agréable quatier, cette charmante maison (+/- 164m² d'après PEB) construite en 2011, disposant de 3 chambres et un garage, saura vous séduire par son confort et son cadre de vie agréable. Elle se compose comme suit: Rez-de-chaussée: hall d'entrée, buanderie (+/- 7m²), garage (+/- 22m²) avec porte sectionnelle motorisée, toilette indépendante et agréable terrasse (+/- 43m²). 1er étage: spacieux séjour disposant d'un poêle à bois (+/- 41m²) avec cuisine équipée ouverte (taque vitrocéramique, hotte, four, frigo, lave-vaisselle) et terrasse suspendue (+/- 7m²). 2ème étage: hall de nuit, débarras/dressing, 3 chambres (11, 8 et 8m²) et salle de douches (douche, wc, lavabo). Climatiseurs reversibles, châssis double vitrage PVC, 23 panneaux photovoltaïques, citerne d'eau de pluie, système d'alarme,... R.C. : 745€, superficie totale parcelle : 122 m². PEB : A, E Spéc : 80 kWh/m².an, E totale : 13.024 kWh/an, n° 20250814012490. Agréable endroit ! Informations données à titre indicatif et non contractuelles. www.waucomont.be
Classe énergétique Énergie spécifique Énergie totale Émission de CO2 PEB No.
A 80kWh/m².an 13024kWh.an 21kg CO2/an 20250814012490

Informations générales

  • Type de bien Maisons / Propriétés
  • Sous-catégorie Maison
  • Disponibilité Date à convenir
  • Etat Très bon
  • Année de construction 2011
  • Nombre d'étages 0
  • Nombre de façades 3

Informations sur l'extérieur

  • Surface parcellaire 122,00 m²
  • Garage 1
  • Parking 1
  • Terrasse 1
  • Surface terrasse 1 50 m²

Informations sur l'intérieur

  • Surface habitable 164,00 m²
  • Cuisine Oui
  • Type de cuisine Equipée
  • Nombre de chambres 3
  • Salle de douche 1
  • Type d'énergie du chauffage Pompe à chaleur

Informations financières

  • Revenu cadastral 745,00 €