Maison 3 chambres avec garage et jardin

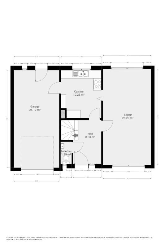
Charmante maison 3 façades (+/- 105m² d’après PEB) avec 3 chambres, terrasse, jardin et garage, idéalement située dans un clos résidentiel calme à Waremme, proche des liaisons vers Bruxelles et Liège. La maison se compose comme suit: Rez-de-chaussée : hall d’entrée avec toilette indépendante, lumineux séjour/ salle à manger (+/- 25m²) avec poêle à bois, cuisine équipée (taque vitrocéramique, hotte, et four) et accès vers le garage et son espace buanderie. 1er étage : 3 chambres (+/- 9, 12,5 et 12,5m²) et une salle de bains (baignoire, lavabo, toilette). Chauffage central au gaz (chaudière à condensation de 2021), châssis double vitrage PVC avec volets. La maison dispose également d’un garage avec porte motorisée, de 2 emplacements de parking extérieur, d’une terrasse et d’un jardin clôturé. PEB : E, E. spéc: 378 kWh/m².an, E. totale : 39.863 kWh/an, n°20250727003483. R.C. : 664€, Superficie totale : 459 m². Très bon état d’entretien ! A ne pas manquer ! Informations et plans donnés à titre indicatif et non contractuels. www.waucomont.be

Classe énergétique Énergie spécifique Énergie totale Émission de CO2 PEB No.
E 378kWh/m².an 39863kWh.an 69kg CO2/an 20250727003483

Informations générales

  • Type de bien Maisons / Propriétés
  • Sous-catégorie Maison
  • Disponibilité Date à convenir
  • Etat Bon
  • Année de construction 1980
  • Nombre de façades 3

Informations sur l'extérieur

  • Surface parcellaire 459,00 m²
  • Garage 1
  • Parking 2

Informations sur l'intérieur

  • Surface habitable 105,00 m²
  • Cuisine Oui
  • Type de cuisine Aménagée
  • Nombre de chambres 3
  • Nombre de salle de bain 1
  • Type d'énergie du chauffage Gaz

Informations financières

  • Revenu cadastral 664,00 €