Maison 3/4 chambres, terrasse

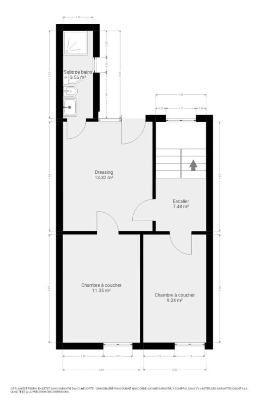
Maison mitoyenne (+/- 135 m² d’après PEB) 3/4 chambres, terrasse, idéalement située à Wandre, à proximité de toutes les commodités (axes routiers, commerces, bus). Elle se compose comme suit : Sous-sol : caves. Rez-de-chaussée : hall d'entrée (+/-12 m²), salon (+/- 18 m²), salle à manger (+/- 14 m²), cuisine semi-équipée (taque vitrocéramique avec four, hotte, évier, lave-vaisselle), buanderie avec toilette . 1er étage : hall de nuit, 3 chambres (+ /- 9, 11 et 13m²), et salle de douches (douche, lavabo, wc, bidet). Grenier : 2 pièces (+/- 9 et +/- 24 m²) éventuellement aménageables. Chauffage central mazout, châssis double vitrage en PVC. PEB : G, Spec: 597 kWh/m2.an, E totale : 80 779 kWh/an, n° 20251223008060. R.C. : 503 €. Superficie totale (terrain) : 217 m². A découvrir! Informations données à titre indicatif et non contractuelles. www.waucomont.be.

Classe énergétique Énergie spécifique Énergie totale Émission de CO2 PEB No.
G 597kWh/m².an 80779kWh.an 148kg CO2/an 20251223008060

Informations générales

  • Type de bien Maisons / Propriétés
  • Sous-catégorie Maison
  • Disponibilité À l'acte
  • Etat À rafraîchir
  • Nombre d'étages 2
  • Nombre de façades 2

Informations sur l'extérieur

  • Surface parcellaire 217,00 m²

Informations sur l'intérieur

  • Surface habitable 135,00 m²
  • Cuisine Oui
  • Type de cuisine Aménagée
  • Nombre de chambres 3
  • Nombre de salle de bain 1
  • Type d'énergie du chauffage Mazout

Informations financières

  • Revenu cadastral 503,00 €