Maison 4 ch, garage et jardin au centre d'Haccourt

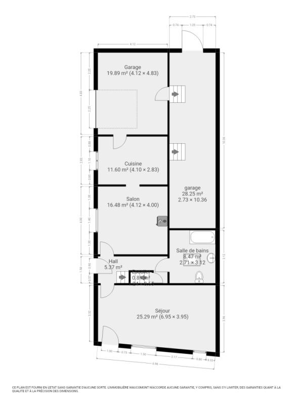
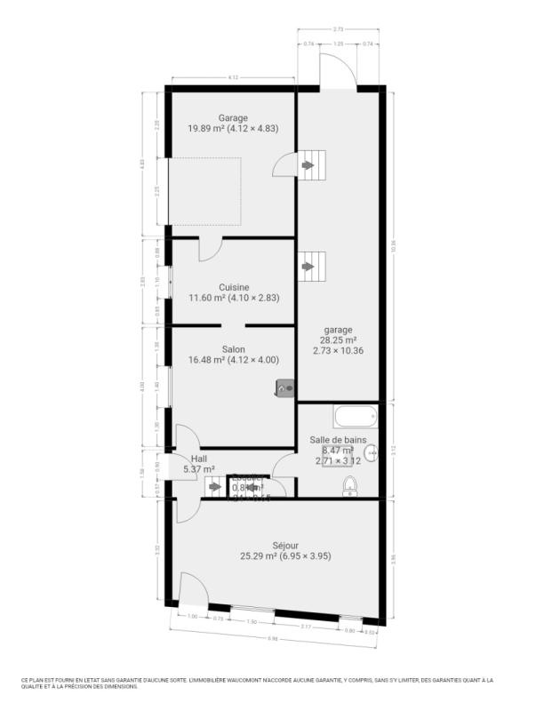
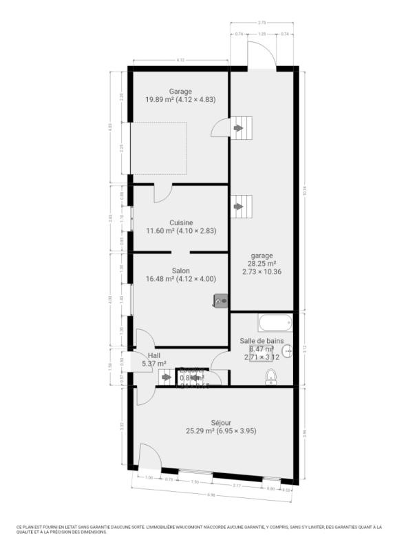
! OPTION ! Charmante maison 3 façades (+/- 180 m² d'après PEB) 4 chambres, passage latéral, garage, et jardin idéalement située au centre d'Haccourt, à proximité de toutes les commodités. Elle se compose comme suit : Sous-sol : caves. Rez-de-chaussée : hall d'entrée, lumineux séjour (+/- 25 m²), salon (+/- 16 m²), cuisine (+/-11m²), salle de bains (baignoire, wc, lavabo, décharge machine), garage (+/- 19 m²) accessible par passage latéral, cour couverte (+/- 25 m²) et agréable jardin. 1er étage : hall de nuit, 2 chambres (+/- 14 et 16m²). 2eme étage : hall de nuit, 2 chambres (+/- 13 et 15 m²). Châssis double vitrage PVC, (porte en bois) avec volets en partie. Pas de chauffage central. PEB : F, E Spéc: 505 kWh/m².an, E totale: 90.620 kWh/an, n° 20240902013101. R.C. 421 € (toutefois aucune garantie ne peut être donné sur le montant de ce R.C.), Superficie totale: +/- 653 m². Informations données à titre indicatif et non contractuelles. Belle situation! www.waucomont.be

Classe énergétique Énergie spécifique Énergie totale Émission de CO2 PEB No.
F 505kWh/m².an 90620kWh.an 466kg CO2/an 20240902013101

Informations générales

  • Type de bien Maisons / Propriétés
  • Sous-catégorie Maison
  • Disponibilité Date à convenir
  • Etat À rafraîchir
  • Nombre d'étages 2
  • Nombre de façades 3

Informations sur l'extérieur

  • Surface parcellaire 653,00 m²
  • Garage 1
  • Parking 2

Informations sur l'intérieur

  • Surface habitable 180,00 m²
  • Cuisine Non
  • Type de cuisine Sans
  • Nombre de chambres 4
  • Type d'énergie du chauffage Aucun

Informations financières

  • Revenu cadastral 426,00 €