Maison 4 chambres, jardin et garage et bunker

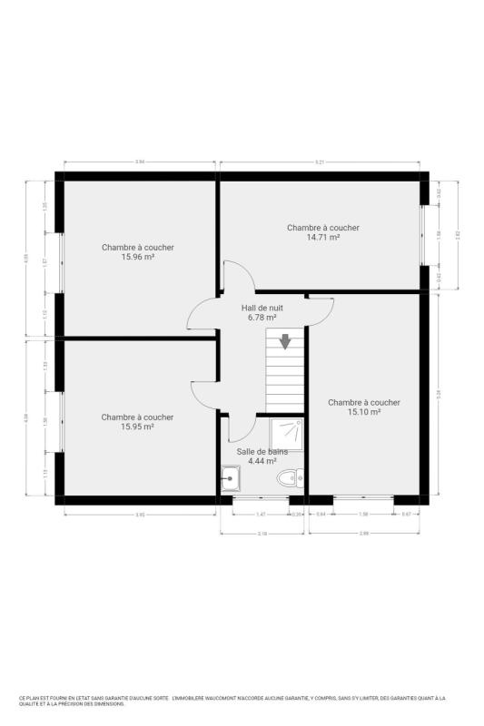
OPTION ! OPTION ! OPTION ! Agréable maison (+/- 182 m² d'après PEB), 4 chambres, jardin et garage et un ancien bunker (sous le jardin) situé dans un quartier calme. Elle se compose comme suit: Sous-sol: une cave. Rez-de-chaussée : hall d'entrée, toilette indépendante, agréable séjour (+/- 33 m²), cuisine meublée semi-équipée (taque gaz, four, hotte) (+/-14 m²), garage (+/- 15 m²), jardin avec ancien bunker( sous le jardin). 1er étage: hall de nuit, 4 chambres (3 chambres de +/- 15 m² et une de +/- 14 m²), salle de douche (douche, lavabo, wc). Châssis double vitrage PVC, chauffage central mazout. R.C.: 1.197 €, Superficie totale (terrain): 365 m². PEB: G : E spec: 571 kWh/m².an, E totale: 104.134 kWh/an, n° 20251113014671. Informations données à titre indicatif et non contractuelles. Belle opportunité! www.waucomont.be
Classe énergétique Énergie spécifique Énergie totale Émission de CO2 PEB No.
G 571kWh/m².an 104134kWh.an 141kg CO2/an 20251113014671

Informations générales

  • Type de bien Maisons / Propriétés
  • Sous-catégorie Maison
  • Disponibilité À l'acte
  • Etat À rafraîchir
  • Nombre d'étages 1
  • Nombre de façades 4

Informations sur l'extérieur

  • Surface parcellaire 365,00 m²
  • Garage 1

Informations sur l'intérieur

  • Surface habitable 182,00 m²
  • Cuisine Oui
  • Type de cuisine Aménagée
  • Nombre de chambres 4
  • Nombre de salle de bain 1
  • Type d'énergie du chauffage Mazout

Informations financières

  • Revenu cadastral 1197,00 €