Maison 4 façades 2 chambres avec jardin

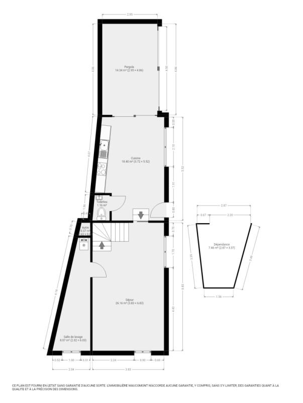
! OPTION ! OPTION ! Bien située sur les hauteurs de Cheratte, maison 4 façades (+/- 123m² d’après PEB) 2 chambres, pergola et jardin. Elle se compose comme suit : Sous-sol : cave. Rez-de-chaussée : lumineux séjour (+/- 26m²), cuisine aménagée (four, taque vitrocéramique, frigo, hotte), buanderie, toilette indépendante, pergola (+/- 14 m²) , jardin, dépendance (+/- 7 m²). 1er étage : 1 chambre (+/- 12 m²), salle de douches (douche, double lavabo, wc). 2ème étage : grenier aménagé en chambre (+/- 26m²). Châssis double vitrage en PVC, chauffage central au gaz. PEB : G, Spec: 861kWh/m2.an, E totale : 106 122 kWh/an, n°20160616006726. R.C. : 386 € (toutefois aucune garantie ne peut être donnée sur le montant de R.C.). Superficie totale (terrain): 249 m². Idéal pour 1er achat. Informations données à titre indicatif et non-contractuelle. A découvrir au plus vite ! www.waucomont.be
Classe énergétique Énergie spécifique Énergie totale Émission de CO2 PEB No.
G 861kWh/m².an 106122kWh.an 212kg CO2/an 20160616006726

Informations générales

  • Type de bien Maisons / Propriétés
  • Sous-catégorie Maison
  • Disponibilité À l'acte
  • Etat Bon
  • Nombre d'étages 2
  • Nombre de façades 4

Informations sur l'extérieur

  • Surface parcellaire 249,00 m²

Informations sur l'intérieur

  • Surface habitable 123,00 m²
  • Cuisine Oui
  • Type de cuisine Aménagée
  • Nombre de chambres 2
  • Salle de douche 1
  • Type d'énergie du chauffage Gaz

Informations financières

  • Revenu cadastral 386,00 €