Maison 4 façades 3 chambres avec jardin et garage.

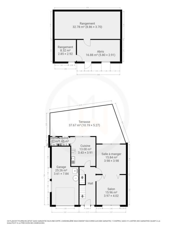
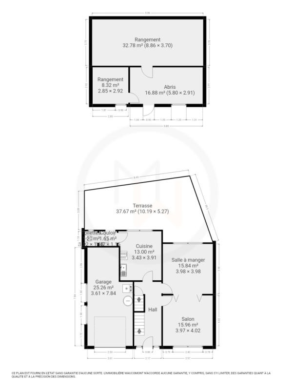
OPTION ! OPTION ! Agréable maison 4 façades (+/- 176m² d'après PEB) 3 chambres avec jardin et garage. Elle se compose comme suit: Sous-sol: 3 caves. Rez-de-chaussée: hall d'entrée, salon (+/- 16 m²), salle à manger (+/- 16 m²), cuisine (+/- 13 m²) (évier, hotte, cuisinière gaz) toilette indépendante, terrasse et jardin et garage (+/- 25 m²) et anexe de +/- 58 m² en dur. 1er étage: hall de nuit, 3 chambres (+/- 12, 15 et 16 m²) et salles de bain (baignoire, lavabo). Châssis double vitrage PVC, chauffage central au gaz. Actuellement loué 625 €/mois. PEB : F, E Spéc: 452 kWh/m².an, E totale : 79.328 WH/an, n° 20251002003207. R.C. : 832 €, superficie terrain : 2080 m². Informations données à titre indicatif et non contractuelles.www.waucomont.be.
Classe énergétique Énergie spécifique Énergie totale Émission de CO2 PEB No.
F 452kWh/m².an 79328kWh.an 85kg CO2/an 20251002003207

Informations générales

  • Type de bien Maisons / Propriétés
  • Sous-catégorie Maison
  • Disponibilité Date à convenir
  • Etat Bon
  • Nombre d'étages 1
  • Nombre de façades 4

Informations sur l'extérieur

  • Surface parcellaire 2080,00 m²
  • Terrasse 1
  • Surface terrasse 1 37 m²

Informations sur l'intérieur

  • Surface habitable 176,00 m²
  • Cuisine Oui
  • Type de cuisine Aménagée
  • Nombre de chambres 3
  • Nombre de salle de bain 1
  • Type d'énergie du chauffage Gaz

Informations financières

  • Revenu cadastral 832,00 €