Maison 4 façades 3 chambres, jardin, garage

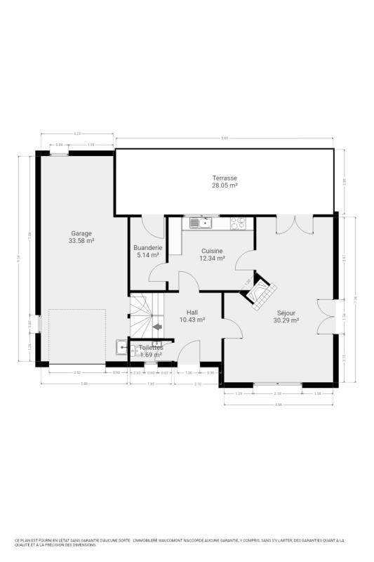
OPTION ! OPTION ! Belle maison 4 façades (+/- 217 m² d'après PEB) avec garage et jardin idéalement située à Slins et se composant comme suit : Sous-sol: garage +/- 33 m², caves. Rez-de-chaussée: hall d'entrée, toilette indépendante, séjour de +/- 30 m² avec cassette à bois, cuisine équipée +/- 12 m² (taque vitrocéramique, hotte, four, four micro onde, frigo, lave vaisselle), arrière cuisine buanderie +/- 5 m², agréable terrasse +/- 28 m² beau jardin. Entresol: 2 chambres ( +/- 8 et 12 m²). 1er étage: palier, 1 chambre +/- 17 m² (avec placards de rangement), salle de bain (baignoire, douche, lavabo, wc). Installation électrique conforme jusqu'a 2050.Chauffage central au mazout, châssis double vitrage en bois. R.C.: 1028 €. Superficie totale terrain: 1000 m². PEB: C, E spéc: 192 kWh/m².an, E totale: 41.780 kWh/an, n° 20250726002746. Belle situation! Informations données à titre indicatif et non contractuelles. www.waucomont.be
Classe énergétique Énergie spécifique Énergie totale Émission de CO2 PEB No.
C 192kWh/m².an 41780kWh.an 48kg CO2/an 20200726002746

Informations générales

  • Type de bien Maisons / Propriétés
  • Sous-catégorie Maison
  • Disponibilité À l'acte
  • Etat À rafraîchir
  • Nombre d'étages 2
  • Nombre de façades 4

Informations sur l'extérieur

  • Surface parcellaire 1000,00 m²
  • Garage 1
  • Parking 2
  • Terrasse 1
  • Surface terrasse 1 28 m²

Informations sur l'intérieur

  • Surface habitable 217,00 m²
  • Cuisine Oui
  • Type de cuisine Equipée
  • Nombre de chambres 3
  • Nombre de salle de bain 1
  • Type d'énergie du chauffage Mazout

Informations financières

  • Revenu cadastral 1028,00 €