Maison à rafraîchir dans un agréable endroit calme

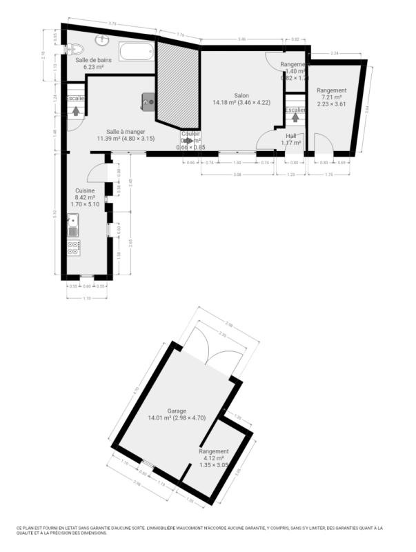
! OPTION ! OPTION ! Charmante maison à rafraîchir (+/- 98m² d’après PEB) 2 chambres, terrasse, jardin et garage idéalement située dans un endroit calme et buccolique à Blegny. Elle se compose comme suit : Rez-de-chaussée : salon (+/- 14m²), salle à manger (+/- 11m²), cuisine aménagée, salles de bains (baignoire, lavabo, wc), atelier (+/- 7m²) et une terrasse bien orientée. 1er étage : 2 spacieuses chambres (+ /- 16 et 20m²). 2ème étage : grenier de rangement (+/- 14m²). Le bien dispose également d’un jardin et d’un garage non attenants qui se trouvent en face. Châssis simple vitrage bois, chauffage via poêle à bois et à charbon (pas de chauffage central). PEB : G, Spec: 746 kWh/m2.an, E totale : 72.959 kWh/an, n°20250325008831. R.C. : 224€. Superficie totale (terrain): 257m². Informations données à titre indicatif et non-contractuelle. Idéal pour 1er achat ou investissement ! A découvrir au plus vite! www.waucomont.be
Classe énergétique Énergie spécifique Énergie totale Émission de CO2 PEB No.
G 746kWh/m².an 72959kWh.an 238kg CO2/an 20250325008831

Informations générales

  • Type de bien Maisons / Propriétés
  • Sous-catégorie Maison
  • Disponibilité À l'acte
  • Etat À rafraîchir
  • Nombre d'étages 0
  • Nombre de façades 3

Informations sur l'extérieur

  • Surface parcellaire 257,00 m²
  • Garage 1

Informations sur l'intérieur

  • Surface habitable 98,00 m²
  • Cuisine Oui
  • Type de cuisine Aménagée
  • Nombre de chambres 2
  • Nombre de salle de bain 1
  • Type d'énergie du chauffage Bois

Informations financières

  • Revenu cadastral 224,00 €