Maison à rénover 2 chambres, jardin et garage

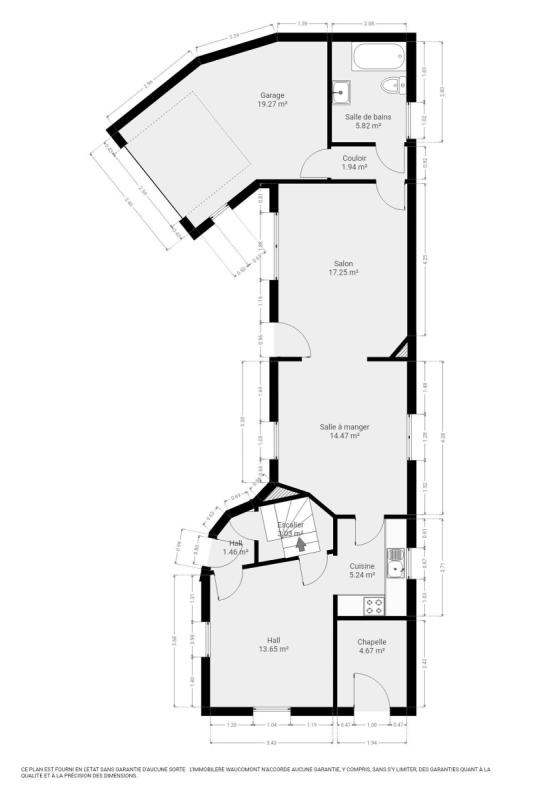
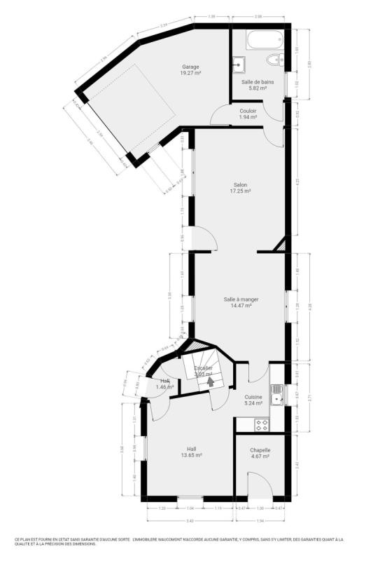
Située à Vottem, spacieuse maison à rénover (+/- 163 m² d'après PEB) 2 chambres avec garage et jardin. Elle se compose comme suit: Rez-de-chaussée: hall d'entrée, ancienne cuisine équipée (taque gaz, hotte, four, frigo , salon (+/- 14 m²), salle à manger (+/- 17 m²), salle de bains (+/- 5 m²) (baignoire, lavabo, wc), garage (+/- 19 m²), chapelle. 1er étage: hall de nuit, 2 chambres (+/- 14 et 15 m²), grenier de rangement. Châssis double vitrage pvc avec volets, chauffage central mazout. PEB: G, E spéc: 565 kWh/m².an, E totale: 92.261 kWh/an, n° 20230116026925. R.C.: 640 €, Superficie totale (terrain): +/- 172 m². La vente est soumise à l'autorisation du Juge de paix et du Tribunal du travail. Informations données à titre indicatif et non contractuelles. A découvrir ! Belle opportunité! wwww.waucomont.be

Classe énergétique Énergie spécifique Énergie totale Émission de CO2 PEB No.
G 565kWh/m².an 92261kWh.an 138kg CO2/an 20230116026925

Informations générales

  • Type de bien Maisons / Propriétés
  • Sous-catégorie Maison
  • Disponibilité À l'acte
  • Etat À rénover
  • Nombre d'étages 1
  • Nombre de façades 4

Informations sur l'extérieur

  • Surface parcellaire 172,00 m²
  • Garage 1

Informations sur l'intérieur

  • Surface habitable 163,00 m²
  • Cuisine Oui
  • Type de cuisine Aménagée
  • Nombre de chambres 2
  • Nombre de salle de bain 1
  • Type d'énergie du chauffage Mazout

Informations financières

  • Revenu cadastral 640,00 €