Maison à Retinne avec terrain en zone d'habitat +/- 262m²

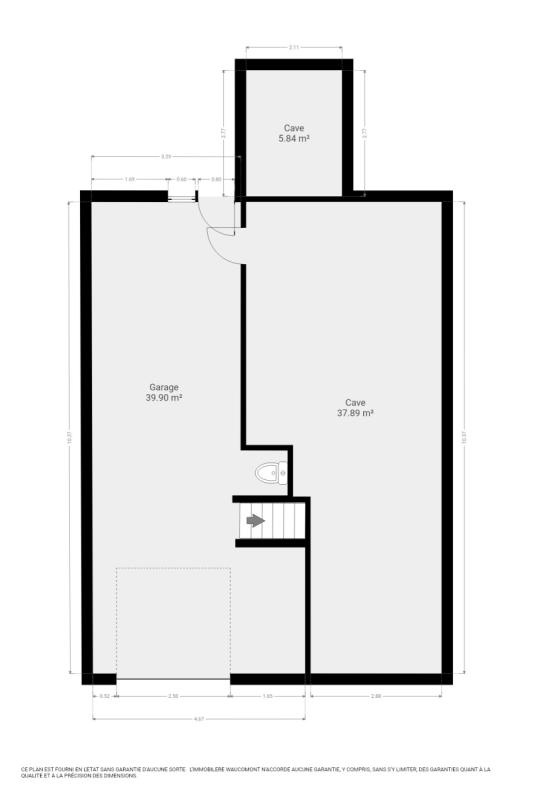
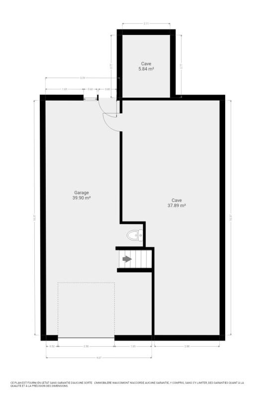
Idéalement située à Retinne, agréable maison semi-mitoyenne (+/- 96 m² d'après PEB) 2 chambres, garage, terrasse et jardin avec un terrain de +/- 262m² en zone d'habitat offrant de nombreuses possibilités. Elle se compose comme suit : Sous-sol : spacieux garage (+/- 39 m²) avec porte sectionelle motorisée, vide-ventilés (+/- 42m²). Entresol : hall d'entrée, lumineux séjour (+/- 29 m²) avec un feu ouvert, cuisine équipée (taque vitrocéramique, four, hotte, frigo, évier), véranda (+/- 13m²), terrasse et beau jardin. 1er étage : 2 chambres (+/- 10 et 13m²), salle de douches (douche italienne, wc, lavabo). Chauffage central au mazout, châssis double vitrage PVC et bois avec volets électriques en partie. PEB : G, Spec: 637 kWh/m2.an, E totale : 61 175kWh/an, n° 20250811019032. R.C. (maison + terrain) : 899€. Superficie totale (terrain + maison) : 518m². La partie de terrain située à gauche lorsqu'on est face à la maison (+/- 262m², largeur façade à rue +/- 9 m). Opportunité à saisir ! A découvrir au plus vite ! Informations données à titre indicatif et non contractuelles. www.waucomont.be.

Classe énergétique Énergie spécifique Énergie totale Émission de CO2 PEB No.
G 637kWh/m².an 61175kWh.an 157kg CO2/an 20250811019032

Informations générales

  • Type de bien Maisons / Propriétés
  • Sous-catégorie Maison
  • Disponibilité À l'acte
  • Etat À rafraîchir
  • Nombre d'étages 0
  • Nombre de façades 3

Informations sur l'extérieur

  • Surface parcellaire 518,00 m²
  • Garage 1

Informations sur l'intérieur

  • Surface habitable 96,00 m²
  • Cuisine Oui
  • Type de cuisine Equipée
  • Nombre de chambres 2
  • Salle de douche 1
  • Type d'énergie du chauffage Mazout

Informations financières

  • Revenu cadastral 899,00 €