Maison avec terrasse et jardin à Dalhem

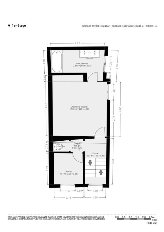
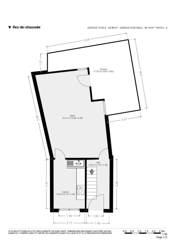
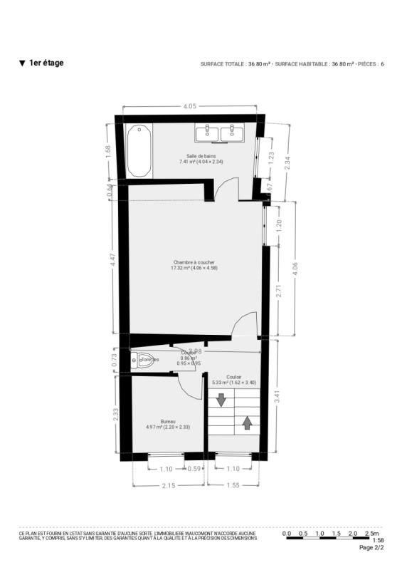
Idéalement située à Dalhem, charmante maison 2 façades à rafraîchir (+/- 102 m² d'après PEB) 1 chambre, terrasse et jardin. Elle se compose comme suit : Sous-sol : cave. Rez-de-chaussée : hall d'entrée, agréable séjour (+/- 23m²), cuisine aménagée (frigo avec partie congélateur, taque électrique, hotte, four, évier), salle de bains (douche, lavabo, espace pour machines), terrasse (+/- 17m²). 1er étage : hall de nuit, 1 chambre (+/- 17m²), bureau (+/- 5m²), toilette indépendante, combles de rangement. Chauffage via un convecteur électrique, châssis double vitrage PVC avec volet manuel en partie. PEB : G, E Spéc: 550 kWh/m².an, E totale : 56.057 kWh/an, n°20250716023492. R.C.: 257 €, Superficie totale : 100 m². Le bien est actuellement loué 588 €/mois. Opportunité à saisir ! Idéal pour premier achat ou investissement ! Informations données à titre indicatif et non contractuelles.www.waucomont.be
Classe énergétique Énergie spécifique Énergie totale Émission de CO2 PEB No.
G 550kWh/m².an 56057kWh.an 97kg CO2/an 20250716023492

Informations générales

  • Type de bien Maisons / Propriétés
  • Sous-catégorie Maison
  • Disponibilité Date à convenir
  • Etat À rénover
  • Nombre d'étages 0
  • Nombre de façades 2

Informations sur l'extérieur

  • Surface parcellaire 100,00 m²
  • Terrasse 1
  • Surface terrasse 1 17 m²

Informations sur l'intérieur

  • Surface habitable 102,00 m²
  • Cuisine Oui
  • Type de cuisine Aménagée
  • Nombre de chambres 1
  • Nombre de salle de bain 1
  • Type d'énergie du chauffage Electricité

Informations financières

  • Revenu cadastral 257,00 €