Maison coup de coeur à Dalhem

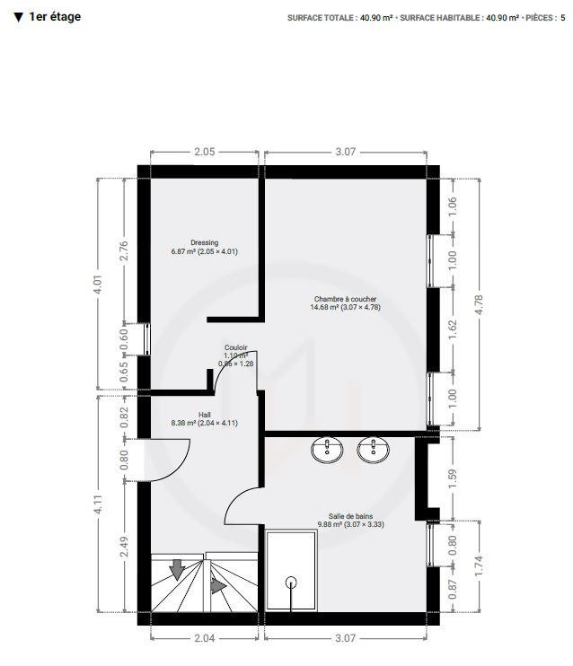
! OPTION ! OPTION ! Superbe maison (+/- 167m² d’après PEB) 1 à 3 chambres, rénovée avec goût en 2017, avec terrasse offrant une belle vue et idéalement située dans le centre du vieux Dalhem. Elle se compose comme suit : Rez-de-chaussée: hall d’entrée avec wc indépendant, charmant séjour (+/-51m²) et cuisine équipée (lave-vaisselle, four, micro-onde, taque induction, hotte, friteuse). 1er étage: hall de nuit, 1 chambre (+/- 15 m²), dressing (+/- 7m²) et salle de douches (douche, lavabo double vasque). 2ème étage: grenier (+/- 45m²) (éventuellement aménageable en deux chambres). Sous-sol: deux caves (cave à vins et local rangement/chaufferie). La maison dispose également d'un jardin et d'une terrasse au 1er étage avec vue panoramique à l’abri des regards. Chauffage central au mazout (chaudière 2018), châssis double vitrage PVC 2017. PEB : C, E Spéc: 248kWh/m².an, E totale 49.313 kWh/an, n° 2022127004780. R.C.: 433€, superficie totale terrain: 189 m². Informations données à titre indicatif et non contractuelles. Maison coup de cœur ! A découvrir rapidement ! www.waucomont.be
Classe énergétique Énergie spécifique Énergie totale Émission de CO2 PEB No.
C 248kWh/m².an 49313kWh.an 64kg CO2/an 20221217004780

Informations générales

  • Type de bien Maisons / Propriétés
  • Sous-catégorie Maison
  • Disponibilité À l'acte
  • Etat Bon
  • Rénovation 2018
  • Nombre d'étages 2
  • Nombre de façades 2

Informations sur l'extérieur

  • Surface parcellaire 189,00 m²
  • Environnement Campagne non-isolée
  • Terrasse 1
  • Surface terrasse 1 20 m²

Informations sur l'intérieur

  • Surface habitable 199,00 m²
  • Cuisine Oui
  • Type de cuisine Equipée
  • Nombre de chambres 3
  • Salle de douche 1
  • Type d'énergie du chauffage Mazout

Informations financières

  • Revenu cadastral 433,00 €