Maison de carctère 2 chambres avec terrasse

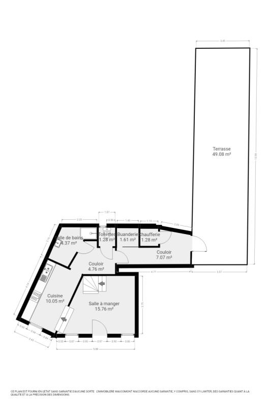
Découvrez le charme authentique d’une maison de caractère (+/- 155m² d'après PEB) rénovée 2 chambres idéalement située, au cœur d'un quartier calme et recherché à Olne. Elle se compose comme suit: Sous-sol: cave (+/- 13m²). Rez-de-chaussée: séjour avec cuisine ouverte (frigo, cuisinière au gaz avec four, hotte, lave-vaisselle, évier), salle de douches (douche à l'italienne, lavabo), toilette indépendante, buanderie (+/- 8m²) et agréable terrasse (+/- 49m²). 1er étage: charmant salon (+/- 16m²) et une chambre (+/- 26m²) avec salle de douches (douche, lavabo, wc). 2ème étage: grenier actuellement aménagé en chambre/bureau mansardé (+/- 30m²). Châssis double vitrage PVC, chauffage central au gaz, ... PEB : C, E Spéc: 187 kWh/m².an, E totale 29.133 kWh/an, n° 20251203020078. R.C. : 197€, Superficie totale (terrain) : 127m². Informations et plans donnés à titre indicatifs et non contractuels. Situation idéale! Occasion à saisir! www.waucomont.be

Classe énergétique Énergie spécifique Énergie totale Émission de CO2 PEB No.
C 187kWh/m².an 29133kWh.an 35kg CO2/an 20251203020078

Informations générales

  • Type de bien Maisons / Propriétés
  • Sous-catégorie Maison
  • Disponibilité Date à convenir
  • Etat Bon
  • Nombre d'étages 0
  • Nombre de façades 2

Informations sur l'extérieur

  • Surface parcellaire 127,00 m²
  • Terrasse 1
  • Surface terrasse 1 49 m²

Informations sur l'intérieur

  • Surface habitable 155,00 m²
  • Cuisine Oui
  • Type de cuisine Equipée
  • Nombre de chambres 2
  • Salle de douche 2
  • Type d'énergie du chauffage Gaz

Informations financières

  • Revenu cadastral 197,00 €