Maison mitoyenne avec 3 chambres, cour et jardinet

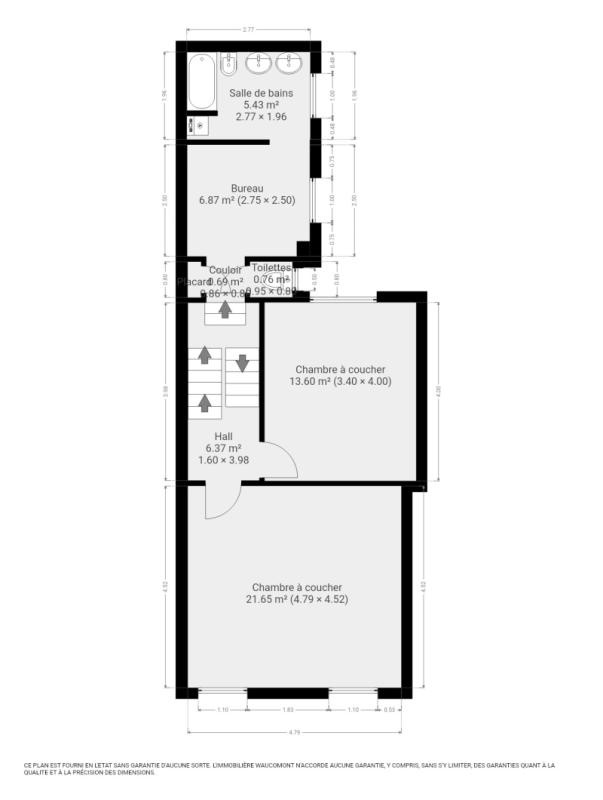
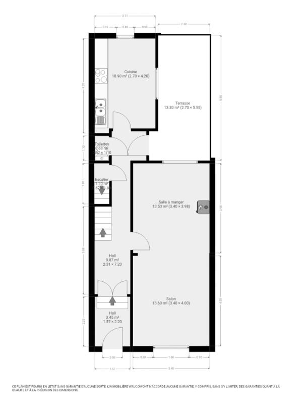
! OPTION ! Charmante et agréable maison bourgeoise de caractère (+/- 182 m² d'après PEB) 3 chambres avec joli extérieur (terrasse et jardinet) bien située à Cointe, non loin de la Basilique. Elle se compose comme suit: Sous-sol: 4 caves. Rez-de-chaussée: hall d'entrée, séjour (+/- 27 m²) avec plancher massif, cuisine équipée (taque vitrocéramique, hotte, four, évier, friteuse), toilette indépendante, agréable terrasse et jardinet. Entresol: bureau (+/- 6 m²), salle de bains (baignoire, double lavabo, bidet) et coin débarras. 1er étage: hall de nuit, 2 chambres (+/- 13 et 21m²). 2ème étage: une chambre (+/- 20m²), grenier +/- 14 m². Châssis double et simple vitrage bois et aluminium (avec volets en partie), chauffage central au gaz. PEB: F, E spéc: 460 kWh/m².an, E totale: 83 872 kWh/an, n°20250210017508. R.C.: 965 €. Superficie totale (terrain): 120 m² Informations données à titre indicatif et non contractuelles. Belle situation et beau potentiel! www.waucomont.be

Classe énergétique Énergie spécifique Énergie totale Émission de CO2 PEB No.
F 460kWh/m².an 83872kWh.an 84kg CO2/an 20250210017508

Informations générales

  • Type de bien Maisons / Propriétés
  • Sous-catégorie Maison
  • Disponibilité À l'acte
  • Etat À rafraîchir
  • Nombre d'étages 2
  • Nombre de façades 2

Informations sur l'extérieur

  • Surface parcellaire 120,00 m²
  • Terrasse 1
  • Surface terrasse 1 13 m²

Informations sur l'intérieur

  • Surface habitable 182,00 m²
  • Cuisine Oui
  • Type de cuisine Equipée
  • Nombre de chambres 3
  • Nombre de salle de bain 1
  • Type d'énergie du chauffage Gaz

Informations financières

  • Revenu cadastral 965,00 €