Maison Semi-mitoyenne 3 chambres, jardin, garage

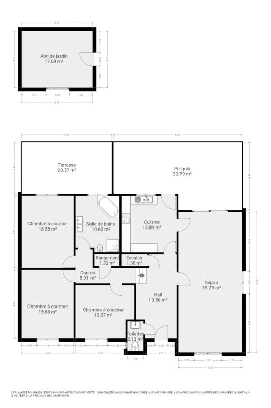
Jolie maison semi-mitoyenne de 1994 (+/- 169 m² d’après PEB), 3 chambres, idéalement située dans une rue calme à Hermée disposant d’un jardin et d’une terrasse. Elle se compose comme suit : Sous sol: grand garage (+/- 40 m²) et 5 caves carrelés (+/- 11, 12, 13, 14 et 39. m²). Rez-de-chaussée : hall d’entrée (+/- 13 m²) avec toilette indépendante, agréable séjour (+/- 39 m²) avec cassette à bois, cuisine équipée (taque vitrocéramique, hotte, frigo, lave-vaisselle, four), sépaées de quelques marches : 3 chambres ( +/- 13,15,16 m² ), salle de bains (baignoire, douche, lavabo, bidet et wc). 4 greniers (+/- 29, 33 et 2 de 40 m²): éventuellement aménageable en chambres supplémentaires (sous réserve des autorisations nécessaires). A l’extérieur, vous bénéficierez d’une terrasse de +/- 20 m², d'une pergola de +/- 33 m² et d'un beau jardin avec abri. Chauffage central mazout, châssis double vitrage bois. PEB G, E Spéc: 668 kWh/m².an, E totale 112.642 Wh/an, n° 20251007014400. R.C. : 1.474 €, Superficie totale (terrain) : 927m². Informations données à titre indicatif et non contractuelles. Belle opportunité dans un agréable endroit ! www.waucomont.be

Classe énergétique Énergie spécifique Énergie totale Émission de CO2 PEB No.
G 668kWh/m².an 112642kWh.an 126kg CO2/an 20251007014400

Informations générales

  • Type de bien Maisons / Propriétés
  • Sous-catégorie Maison
  • Disponibilité À l'acte
  • Etat Bon
  • Nombre d'étages 2
  • Nombre de façades 4

Informations sur l'extérieur

  • Surface parcellaire 927,00 m²
  • Garage 1
  • Parking 4
  • Terrasse 1
  • Surface terrasse 1 20 m²

Informations sur l'intérieur

  • Surface habitable 169,00 m²
  • Cuisine Oui
  • Type de cuisine Equipée
  • Nombre de chambres 3
  • Nombre de salle de bain 1
  • Salle de douche 1
  • Type d'énergie du chauffage Mazout

Informations financières

  • Revenu cadastral 1474,00 €