Maison semi-mitoyenne à Trembleur

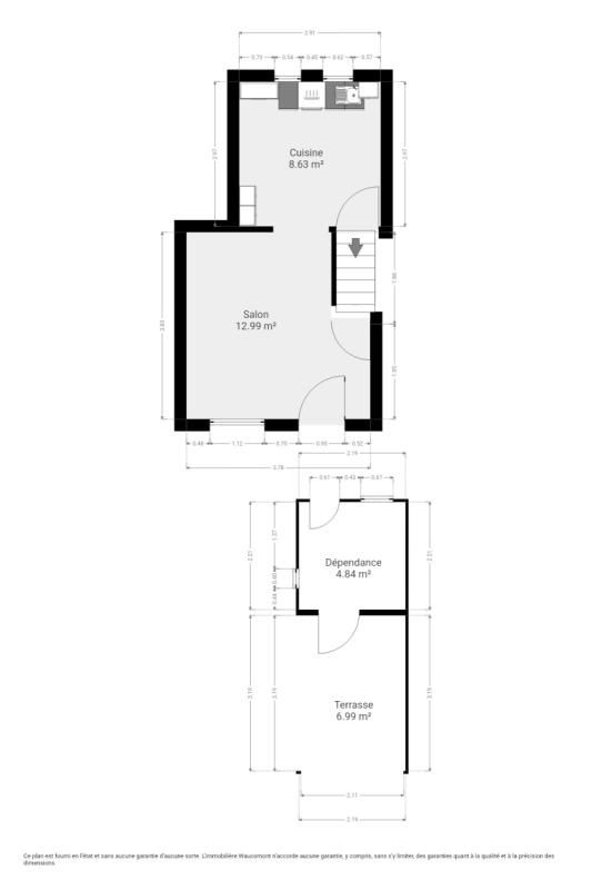
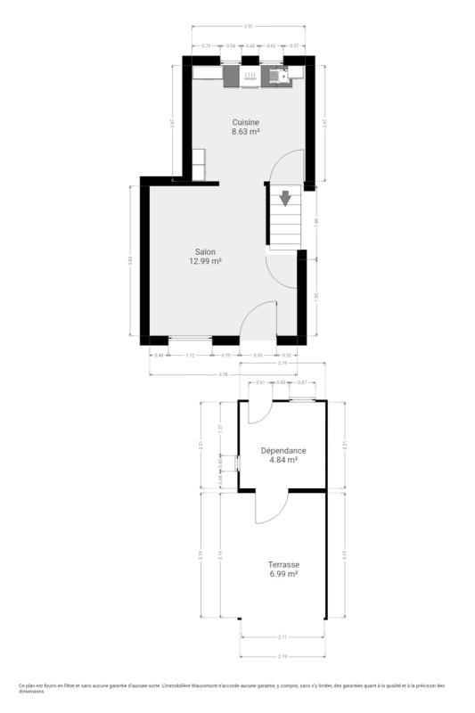
OPTION! OPTION! Idéalement située dans un endroit calme à Trembleur, charmante maison semi-mitoyenne (+/- 58 m² d'après PEB) 1 chambre, jardin, cour, terrasse et une dépendance. Elle se compose comme suit : Sous-sol : cave. Rez-de-chaussée : lumineux salon (+/- 13m²), cuisine semi-équipée (hotte, frigo, évier, four), petite cour, dépendance (+/- 5m²), terrasse couverte (+/- 7m²) et un agréable jardin. 1er étage : 1 chambre (+/- 14m²), salle de douches (douche, lavabo, wc). Le bien dispose d’un petit grenier de rangement au-dessus de la dépendance (+/- 6m²). Châssis double vitrage PVC. PEB : G, E Spéc: 1037 kWh/m².an, E totale : 60.630kWh/an, n° 20250811010791. R.C. : 176€, Superficie totale (terrain): 150m². Opportunité à saisir ! A découvrir ! Informations données à titre indicatif et non contractuelles.www.waucomont.be
Classe énergétique Énergie spécifique Énergie totale Émission de CO2 PEB No.
G 1037kWh/m².an 60630kWh.an 267kg CO2/an 20250811010791

Informations générales

  • Type de bien Maisons / Propriétés
  • Sous-catégorie Maison
  • Disponibilité À l'acte
  • Etat À rafraîchir
  • Nombre d'étages 0
  • Nombre de façades 3

Informations sur l'extérieur

  • Surface parcellaire 150,00 m²
  • Terrasse 1
  • Surface terrasse 1 7 m²

Informations sur l'intérieur

  • Surface habitable 58,00 m²
  • Cuisine Oui
  • Type de cuisine Aménagée
  • Nombre de chambres 1
  • Salle de douche 1
  • Type d'énergie du chauffage Aucun

Informations financières

  • Revenu cadastral 176,00 €