Maison terrasse, garage et partie gros oeuvre à aménager

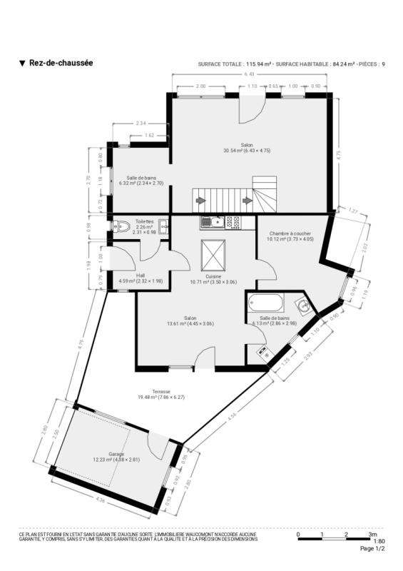
Maison 3 façades (+/- 91m² d'après PEB) bien située sur les hauteurs de Herstal actuellement 1 chambre avec garage, 3 places de parking extérieures privées, terrasse et une partie à l'état de gros œuvre offrant de nombreuses possibilités d'aménagment. Cette maison se compose comme suit: Partie aménagée: Rez-de-chaussée : hall d'entrée avec toilette indépendante, agréable séjour (+/- 24m²), cuisine semi-équipée (taque gaz, hotte, four, évier), 1 chambre (+/- 10m²), salle de bains (baignoire, lavabo), grande et belle terrasse (+/- 19m²) avec garage. Partie à l'état de gros œuvre avec beau potentiel : Rez-de-chaussée : agréable séjour +/- 30 m², salle de bains et combles de rangement. Châssis double vitrage PVC, chauffage central au gaz. R.C. : 332€, superficie totale (terrain): 254m². PEB: G, E Spéc: 890 kWh/m².an, E totale: 80.585 kWh/an, n°20170524012621. Informations données à titre indicatif et non contractuelles. Opportunité à saisir!! www.waucomont.be

Classe énergétique Énergie spécifique Énergie totale Émission de CO2 PEB No.
G 890kWh/m².an 80585kWh.an 163kg CO2/an 20170524012621

Informations générales

  • Type de bien Maisons / Propriétés
  • Sous-catégorie Maison
  • Disponibilité À l'acte
  • Etat À rafraîchir
  • Nombre d'étages 0
  • Nombre de façades 3

Informations sur l'extérieur

  • Surface parcellaire 254,00 m²
  • Garage 1
  • Parking 3
  • Terrasse 1
  • Surface terrasse 1 19 m²

Informations sur l'intérieur

  • Surface habitable 91,00 m²
  • Cuisine Oui
  • Type de cuisine Aménagée
  • Nombre de chambres 2
  • Nombre de salle de bain 1
  • Type d'énergie du chauffage Gaz

Informations financières

  • Revenu cadastral 332,00 €