Propriété avec parc arboré et accès arrière!

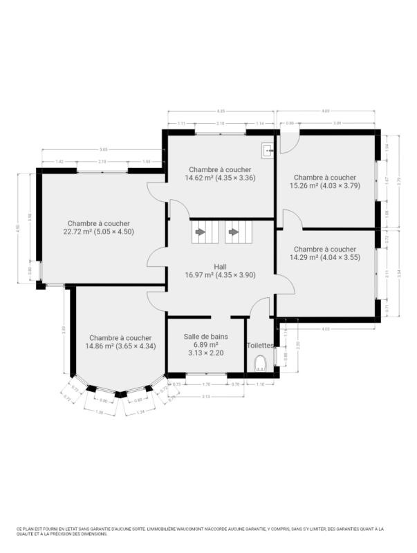
OPTION! OPTION! Spacieuse maison de caractère à rénover (+/- 309 m² d'après PEB) sur et avec terrain de +/- 2.063m² proche de toutes les commodités de Fléron. Cette propriété est également accèssible depuis l'Avenue Reine Astrid. La maison se compose comme suit: Sous-sol: caves. Rez-de-chaussée: hall d'entrée, lumineux séjour +/- 38 m², cuisine +/- 15 m², arrière cuisine +/- 10 m², salon +/- 29 m², partie avec entrée indépendante comprenant un hall, une toillette indépendante et un bureau +/- 21 m². 1er étage: hall de nuit, 5 chambres (+/- 14, 15, 15, 15 et 23 m²), salle de bain +/- 7 m², wc indépendant. Combles aménagés en 2 chambres (+/- 15 et 23 m²), greniers (+/- 4 et 16 m²). Matériaux de caractères (sols, cheminées, ... PEB: G, E Spéc: 646 kWh/m².an, E totale: 199.354 kWH/an, n° 20221212025982. R.C.: 2.327€, superficie totale: +/- 2.063 m². Informations données à titre indicatif et non contractuelles. Nombreuses possibilités (maison de caractère, profession libérale, ...) ! www.waucomont.be
Classe énergétique Énergie spécifique Énergie totale Émission de CO2 PEB No.
G 646kWh/m².an 199354kWh.an 118kg CO2/an 20221212025982

Informations générales

  • Type de bien Maisons / Propriétés
  • Sous-catégorie Maison
  • Disponibilité À l'acte
  • Etat À rénover
  • Année de construction 1950
  • Nombre d'étages 2
  • Nombre de façades 4

Informations sur l'extérieur

  • Surface parcellaire 2063,00 m²
  • Parking 1

Informations sur l'intérieur

  • Surface habitable 309,00 m²
  • Cuisine Non
  • Type de cuisine Sans
  • Nombre de chambres 7
  • Nombre de salle de bain 1
  • Type d'énergie du chauffage Aucun

Informations financières

  • Revenu cadastral 2327,00 €