Quartier Robinson à Visé, maison contemporaine 4ch, garage

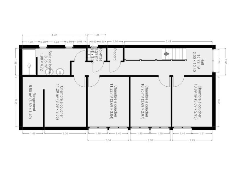
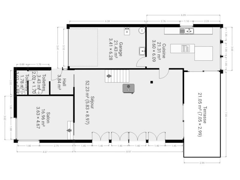
Superbe maison contemporaine de 2005 idéalement située dans le charmant quartier résidentiel de Robinson à Visé. Elle se compose comme suit: Rez-de-chaussée: hall d'entrée avec toilette indépendante, spacieux et lumineux séjour (+/- 52m²) aménagé en salon et salle à manger avec poêle à bois et air conditionné, salon séparé (qui peut faire office de bureau ou de chambre), cuisine équipée (frigo américain, taque gaz, lave-vaisselle, four, hotte) séparée ouverte sur le jardin et sa terrasse. 1er étage: 4 chambres (+/- 16, 11, 10 et 10 m²), salle de douches avec double vasques, toilette indépendante. Garage et grenier de rangement. Chauffage central au gaz (chauffage sol au rdc), production d'eau chaude via un boiler thermodynamique, châssis bois double vitrage anti effraction, 24 panneaux photovoltaïques, citerne d'eau de pluie raccordée sur WC, buanderie et robinet extérieur, volets en partie. PEB: B, E Spéc: 156 kWh/m².an, E totale: 37 338 kWH/an, n° 20230716006039. R.C. : 1 510 €. Superficie terrain : 778 m². Bien d’exception dans un quartier calme et recherché ! Coup de cœur assuré ! Informations données à titre indicatif et non contractuelles. www.waucomont.be
Classe énergétique Énergie spécifique Énergie totale Émission de CO2 PEB No.
B 156kWh/m².an 37338kWh.an 26kg CO2/an 20230716006039

Informations générales

  • Type de bien Maisons / Propriétés
  • Sous-catégorie Maison
  • Disponibilité À l'acte
  • Etat Très bon
  • Année de construction 2007
  • Nombre d'étages 1
  • Nombre de façades 4

Informations sur l'extérieur

  • Surface parcellaire 778,00 m²
  • Garage 1
  • Environnement Lotissement
  • Terrasse 1
  • Surface terrasse 1 21 m²

Informations sur l'intérieur

  • Surface habitable 239,00 m²
  • Cuisine Oui
  • Type de cuisine Equipée et aménagée
  • Nombre de chambres 4
  • Nombre de salle de bain 1
  • Type d'énergie du chauffage Gaz

Informations financières

  • Revenu cadastral 1510,00 €