Saive - Villa avec piscine intérieure, jardin et grand garage

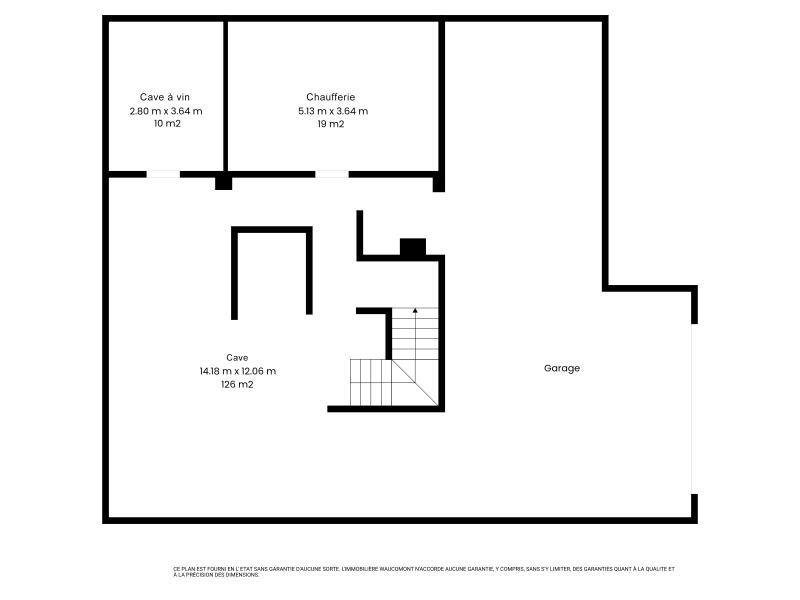
Située dans un agréable endroit calme à Saive, magnifique villa de 2007 (+/- 417m² d’après PEB) avec piscine intérieure, 3 chambres, bureau, terrasse et jardin. Elle se compose comme suit : Sous-sol : vaste garage pour plusieurs véhicules avec porte sectionnelle motorisée, cave à vin et chaufferie. Rez-de-chaussée : spacieux hall d’entrée (+/- 20 m²), wc indépendant,agréable séjour avec cassette à bois (+/- 56 m²), cuisine ouverte équipée avec coin repas (+/- 40 m²) (taque gaz et vitrocéramique, hotte, four, frigo, lave-vaisselle, chauffe-plat), arrière cuisine (+/- 10 m²), piscine intérieure (11,12m x 4,99m) avec bel espace en mezzanine (+/- 34 m²), terrasse et jardin. 1er étage : hall de nuit, 3 chambres +/- 14, et 2 de 17 m² dont une avec coin dressing), salle de bains (baignoire, douche, lavabo). Grenier pouvant être utilisé comme salle de loisirs (salle cinéma), bureau,dressing. Chauffage central mazout, châssis double vitrage PVC, système d’alarme, citerne d'eau de pluie +/- 2.500L, portail électrique. PEB : C, E Spéc: 209 kWh/m².an, E totale: 87.078kWh/an, n° 20250610013084. R.C. : 2.596€, Superficie totale : 1.174m².Informations et plans donnés à titre indicatif et non contractuels. Opportunité rare! Agréable endroit calme! www.waucomont.be.

Classe énergétique Énergie spécifique Énergie totale Émission de CO2 PEB No.
C 209kWh/m².an 87078kWh.an 52kg CO2/an 20250610013084

Informations générales

  • Type de bien Maisons / Propriétés
  • Sous-catégorie Villa
  • Disponibilité À l'acte
  • Etat Excellent
  • Nombre d'étages 2
  • Nombre de façades 4

Informations sur l'extérieur

  • Surface parcellaire 1174,00 m²
  • Garage 1
  • Parking 4

Informations sur l'intérieur

  • Surface habitable 417,00 m²
  • Cuisine Oui
  • Type de cuisine Equipée
  • Nombre de chambres 3
  • Nombre de salle de bain 1
  • Type d'énergie du chauffage Mazout

Informations financières

  • Revenu cadastral 2596,00 €