Spacieuse maison 5/6 chambres, cour et garage

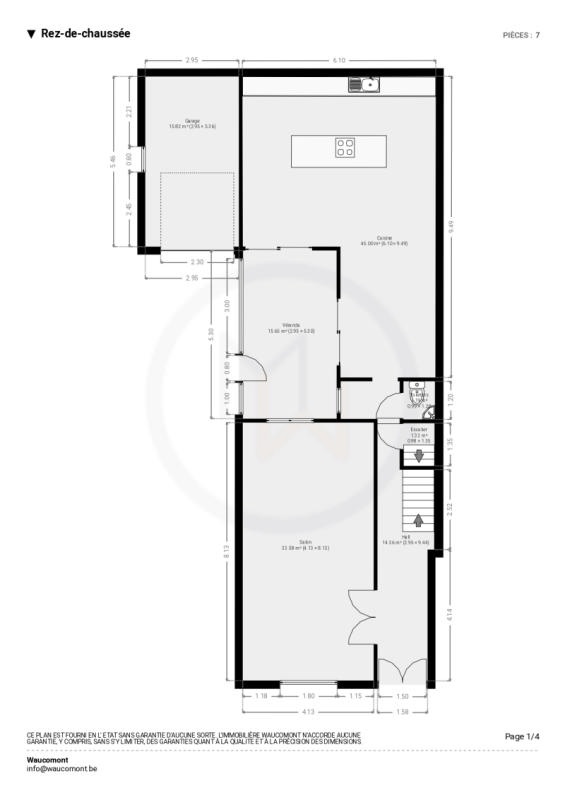
Spacieuse maison de caractère semi-mitoyenne (avec permis octroyé en 2023 pour la division du bien en 2 logements) rénovée en grande partie (+/- 213 m² d'après PEB), 5 à 6 chambres, garage, emplacements de stationnement située à Herstal, à proximité directe du pont de Wandre et de toutes ses commodités. Elle comprend au Rez-de-chaussée : beau hall d'entrée, toilette indépendante, agréable séjour (+/-33 m²), vaste cuisine équipée (+/- 45 m²) (four, four micro-ondes, taque vitro céramique, lave-vaisselle), véranda (+/- 15 m²), allée privative (+/- 15 m²) menant au garage (stationnement pour plusieurs véhicules possible). A l'entresol: salle de bains, (baignoire, douche, lavabo, wc), buanderie avec accès à une terrasse de +/- 37 m². Au 1er étage: hall de nuit avec placards, 3 chambres (+/- 8, 12 et 16 m²). Au 2ème étage: 2 chambres (+/-12 m² chacune), bureau/chambre/dressing (+/- 10 m²), salle de douches (douche, lavabo). Châssis double vitrage bois et PVC, chauffage central mazout. Le bien comprend un panneau publicitaire sur la façade latérale ( location de +/- 120 €/par mois). R.C.: 1.122 €, Superficie totale (terrain): 228 m². PEB: G: E spec: 578 Wh/m².an, E totale: 123.237 Wh/an, n° 20161216010016. Informations données à titre indicatif et non contractuelles. Beau potentiel! Belle situation! www.waucomont.be

Classe énergétique Énergie spécifique Énergie totale Émission de CO2 PEB No.
G 578kWh/m².an 123237kWh.an 145kg CO2/an 20161216010016

Informations générales

  • Type de bien Maisons / Propriétés
  • Sous-catégorie Maison
  • Disponibilité À l'acte
  • Etat Bon
  • Nombre d'étages 2
  • Nombre de façades 3

Informations sur l'extérieur

  • Surface parcellaire 228,00 m²
  • Garage 1
  • Parking 3
  • Terrasse 1
  • Surface terrasse 1 37 m²

Informations sur l'intérieur

  • Surface habitable 213,00 m²
  • Cuisine Oui
  • Type de cuisine Equipée
  • Nombre de chambres 5
  • Nombre de salle de bain 1
  • Salle de douche 1
  • Type d'énergie du chauffage Mazout

Informations financières

  • Revenu cadastral 1122,00 €