Spacieuse maison (5ch) avec terrasse et jardin !!

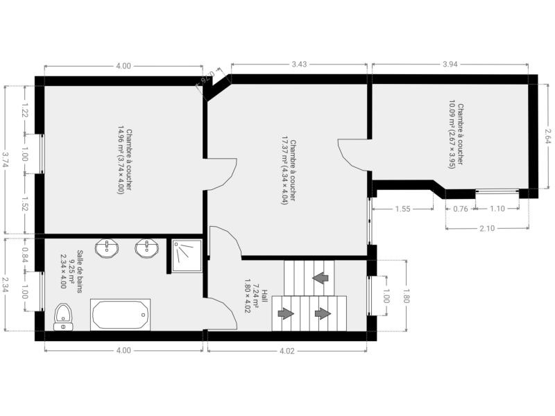
! OPTION ! OPTION ! Idéalement située à 2 pas du Parc Godin et des facilités d'accès autoroutiers, charmante et spacieuse maison mitoyenne (+/- 198 m² d'après PEB) 5 chambres avec jardin. Elle se compose comme suit: Sous-sol: caves (+/- 35m²). Rez-de-chaussée: hall d'entrée, wc indépendant, agréable séjour et salle à manger (+/- 35m²), nouvelle cuisine équipée (frigo avec tiroirs congélateur, taque vitrocéramique, hotte, lave-vaisselle, four), terrasse sans vis-à-vis (+/- 18m²) et jardin orienté Sud-Est. 1er étage: hall de nuit, 3 chambres ( +/- 10m², 15m² et 17m²), salle de bains (baignoire, douche, double lavabo, wc). 2ème étage: 3 chambres mansardées (+/- 11m² et 2 de 15m²). Spacieux grenier pour rangement dont le plancher est isolé. Châssis double vitrage PVC, chauffage central au mazout (cuve de +/- 2200 L.). R.C.: 743€, Superficie totale (terrain): 290m². PEB: D, E Spéc: 284 kWh/m².an, E totale: 56 207 kWh/an, n°20250317014554. Informations données à titre indicatif et non contractuelles. Opportunité à saisir jeune couple ou famille avec enfants! www.waucomont.be
Classe énergétique Énergie spécifique Énergie totale Émission de CO2 PEB No.
D 284kWh/m².an 56207kWh.an 70kg CO2/an 20250317014554

Informations générales

  • Type de bien Maisons / Propriétés
  • Sous-catégorie Maison
  • Disponibilité À l'acte
  • Etat Bon
  • Nombre d'étages 3
  • Nombre de façades 2

Informations sur l'extérieur

  • Surface parcellaire 290,00 m²
  • Environnement Urbain
  • Terrasse 1
  • Surface terrasse 1 18 m²

Informations sur l'intérieur

  • Surface habitable 198,00 m²
  • Cuisine Oui
  • Type de cuisine Equipée et aménagée
  • Nombre de chambres 5
  • Nombre de salle de bain 1
  • Type d'énergie du chauffage Mazout

Informations financières

  • Revenu cadastral 743,00 €