Spacieuse maison à rafraîchir, 5ch, jardin et grand garage

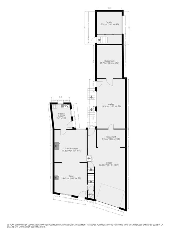
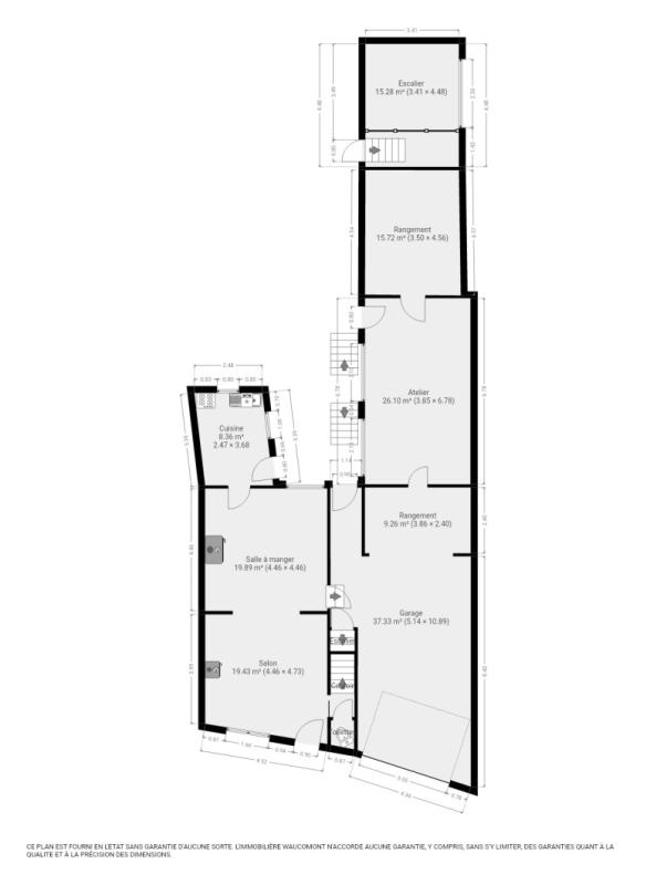
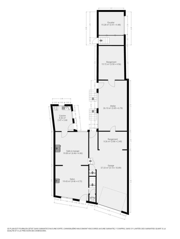
! OPTION ! OPTION ! Charmante et spacieuse maison semi-mitoyenne à rafraîchir (+/- 379m² d'après PEB) 5 chambres, jardin et deux garages (+/- 46 et 15m²), ateliers, idéalement située à Saive à proximité de toutes les commodités et offrant de nombreuses possibilités (sous réserve des autorisations nécessaires). Elle se compose comme suit : Sous-sol : caves. Rez-de-chaussée : spacieux séjour (+/- 39m²), cuisine aménagée (cuisinière gaz avec un four, hotte, lave-vaisselle, évier), toilette indépendante, spacieux garage (+/- 46m²) et un plus petit (+/- 15m²), ateliers/espaces de rangements (+/- 41m²), terrasse couverte et un jardin. 1er étage : hall de nuit, 5 chambres (+ /- 9, 11, 12 et 2 de 20m²), salle de bains (baignoire, bidet, lavabo, wc). 2ème étage : grenier actuellement aménagé en 2 chambres (+/- 14 et 16m²), bureau (+/- 8m²) et 2 greniers de rangement (+/- 17 et 22 m²). Châssis simple et double vitrage bois (avec volets manuels en partie), chauffage central au gaz de ville, un foyer gaz. PEB : F, Spec: 451 kWh/m2.an, E totale : 171 058 kWh/an, n° 20250408015228. R.C. : 582€. Superficie totale (terrain) : 313m². Informations données à titre indicatif et non-contractuelles. Opportunité à saisir ! Beaux volumes! Nombreuses possibilités ! www.waucomont.be
Classe énergétique Énergie spécifique Énergie totale Émission de CO2 PEB No.
F 451kWh/m².an 171058kWh.an 82kg CO2/an 20250408015228

Informations générales

  • Type de bien Maisons / Propriétés
  • Sous-catégorie Maison
  • Disponibilité À l'acte
  • Etat À rafraîchir
  • Nombre d'étages 0
  • Nombre de façades 3

Informations sur l'extérieur

  • Surface parcellaire 313,00 m²
  • Garage 2

Informations sur l'intérieur

  • Surface habitable 379,00 m²
  • Cuisine Oui
  • Type de cuisine Aménagée
  • Nombre de chambres 5
  • Nombre de salle de bain 1
  • Type d'énergie du chauffage Gaz

Informations financières

  • Revenu cadastral 582,00 €