Spacieuse maison avec jardin !

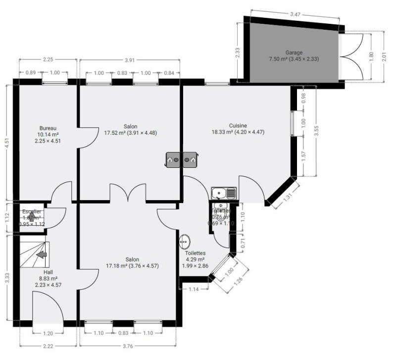
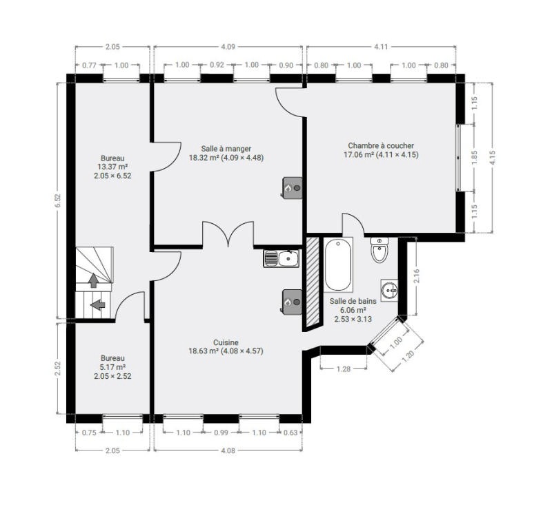
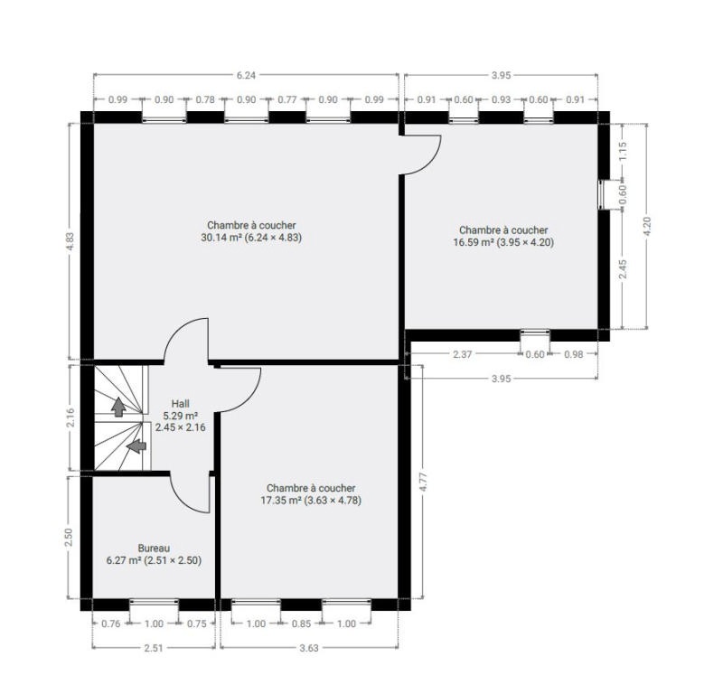
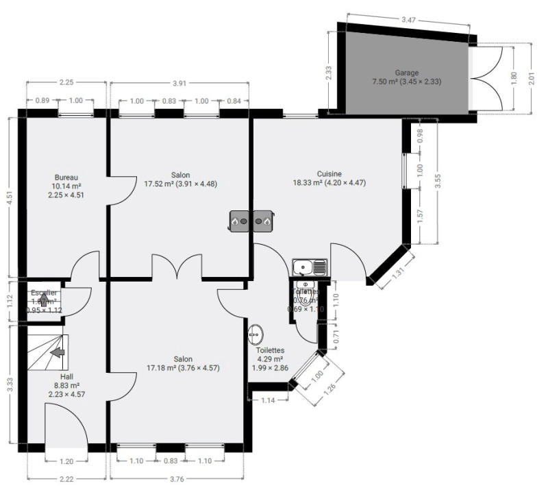
Spacieuse maison unifamiliale (+/-258m² d’après PEB) 4 chambres avec beau jardin, idéalement située dans une rue calme à Herve, à proximité de toutes les commodités. Elle se compose comme suit : Sous-sol : caves (+/-16 et 17m²). Rez-de-chaussée : hall d’entrée, spacieux salon, salle à manger (+/- 34m²), cuisine non-équipée (+/- 18m²), débarras et wc indépendant. 1er étage: second séjour (+/- 36m²), une chambre (+/- 17m²), salle de bains (baignoire, lavabo, wc) et 2 bureaux. 2ème étage: 3 chambres (+/- 16, 17et 30m²). 3eme étage : grenier non aménagé. A l’extérieur, vous bénéficierez d’un jardin et d’une terrasse idéalement orientés et d’un garage. Chauffage à pellets, châssis double vitrage PVC et bois, électricité non-conforme. PEB : D, E Spéc: 306 kWh/m².an, E totale : 78.931 kWh/an, n° 20250520017325. R.C. : 732€. Superficie totale terrain : 490 m². Opportunité à saisir à Herve ! A découvrir ! Informations données à titre indicatif et non contractuelles www.waucomont.be
Classe énergétique Énergie spécifique Énergie totale Émission de CO2 PEB No.
D 306kWh/m².an 78931kWh.an 3kg CO2/an 20250520017325

Informations générales

  • Type de bien Maisons / Propriétés
  • Sous-catégorie Maison
  • Disponibilité À l'acte
  • Etat À rafraîchir
  • Nombre d'étages 0
  • Nombre de façades 4

Informations sur l'extérieur

  • Surface parcellaire 490,00 m²
  • Garage 1
  • Environnement Campagne non-isolée

Informations sur l'intérieur

  • Surface habitable 258,00 m²
  • Cuisine Oui
  • Type de cuisine Aménagée
  • Nombre de chambres 4
  • Nombre de salle de bain 1
  • Type d'énergie du chauffage Aucun

Informations financières

  • Revenu cadastral 732,00 €