Spacieuse maison de caractère 5 ch. avec jardin

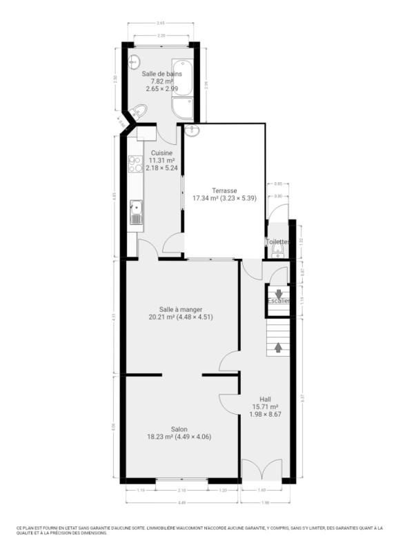
OPTION! OPTION! Maison de caractère à rénover (+/- 249m² d'après PEB) 5 chambres avec jardin offrant de nombreuses possibilités d'aménagement. Elle se compose comme suit; Sous-sol: caves (+/- 54m²). Rez-de-chaussée: hall d'entrée, séjour (+/- 38m²), cuisine semi-équipée (four, hotte, taque électrique, lave-vaisselle, évier), salle de bains baignoire, douche, wc, lavabo), terrasse (+/- 17m²) et jardin orienté Ouest. 1er étage: palier, 2 chambres (+/- 17 et 20m²), toilette indépendante et bureau (+/- 8m²). 2 ème étage: palier, 3 chambres (+/- 12m² et 2 de 15m²) et toilette indépendante. Vaste grenier aménageable (+/- 38m²). Châssis simple vitrage bois et double vitrage PVC, chauffage central au gaz. 2 compteurs gaz, 2 compteurs électriques, 1 compteur d'eau. PEB : E, E spéc: 367 kWh/m².an, E totale: 91.529 kWh/an, n° 20240726005464. R.C. : 823 €. Superficie totale (terrain): 330 m². Informations données à titre indicatif et non contractuelles. Vente soumise à l'autorisation du juge de paix. Endroit calme ! www.waucomont.be
Classe énergétique Énergie spécifique Énergie totale Émission de CO2 PEB No.
E 367kWh/m².an 91529kWh.an 68kg CO2/an 20240726005464

Informations générales

  • Type de bien Maisons / Propriétés
  • Sous-catégorie Maison
  • Disponibilité À l'acte
  • Etat À rénover
  • Nombre d'étages 0
  • Nombre de façades 2

Informations sur l'extérieur

  • Surface parcellaire 330,00 m²
  • Terrasse 1
  • Surface terrasse 1 17 m²

Informations sur l'intérieur

  • Surface habitable 249,00 m²
  • Cuisine Oui
  • Type de cuisine Aménagée
  • Nombre de chambres 5
  • Nombre de salle de bain 1
  • Salle de douche 1
  • Type d'énergie du chauffage Gaz

Informations financières

  • Revenu cadastral 823,00 €