Spacieuse villa 5 chambres garage et jardin

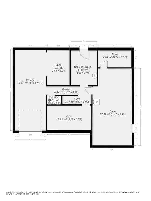
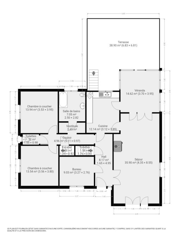
OPTION ! OPTION ! OPTION ! Spacieuse villa (+/-204m² d'après PEB) 5 chambres avec garage, terrasse et beau jardin bien orienté, idéalement située proche du centre de Haccourt, des commerces et des axes routiers. Elle se compose comme suit: Sous-sol: spacieuses caves, buanderie (+/- 12m²) et garage (+/- 32m²). Rez-de-chaussée: hall d'entrée, agréable séjour avec poêle à bois (+/- 35m²) ouvert sur une lumineuse véranda (+/- 14m²) donnant sur la terrasse (+/- 38m²) et le jardin, cuisine équipée (taque induction, hotte, frigo-congélateur, lave-vaisselle), bureau (+/- 9m²), 2 chambres (+/- 13 et 14m²), salle de bains (baignoire, lavabo, bidet) et toilette indépendante. 1er étage: combles actuellement aménagés en hall de nuit, 3 chambres (+/- 20, 22 et 38 m²) et salle de douches (douche, lavabo, wc). Châssis double vitrage bois (sauf véranda en aluminium double vitrage), chauffage central mazout. PEB: , D spéc: 318 kWh/m².an, E totale: 67 775 kWh/an, n°20250429011085. R.C.: 1.264€, Superficie totale (terrain): 1.742 m². A ne pas manquer ! Idéal pour famille nombreuse ! Informations données à titre indicatif et non contractuelles. www.waucomont.be
Classe énergétique Énergie spécifique Énergie totale Émission de CO2 PEB No.
D 318kWh/m².an 64775kWh.an 79kg CO2/an 20250429011085

Informations générales

  • Type de bien Maisons / Propriétés
  • Sous-catégorie Maison
  • Disponibilité À l'acte
  • Etat Bon
  • Nombre d'étages 0
  • Nombre de façades 4

Informations sur l'extérieur

  • Surface parcellaire 1742,00 m²
  • Garage 1
  • Parking 2
  • Terrasse 1
  • Surface terrasse 1 38 m²

Informations sur l'intérieur

  • Surface habitable 204,00 m²
  • Cuisine Oui
  • Type de cuisine Equipée
  • Nombre de chambres 5
  • Nombre de salle de bain 1
  • Salle de douche 1
  • Type d'énergie du chauffage Mazout

Informations financières

  • Revenu cadastral 1264,00 €