Superbe fermette à Saive avec granges et terrain +/- 3.610m²

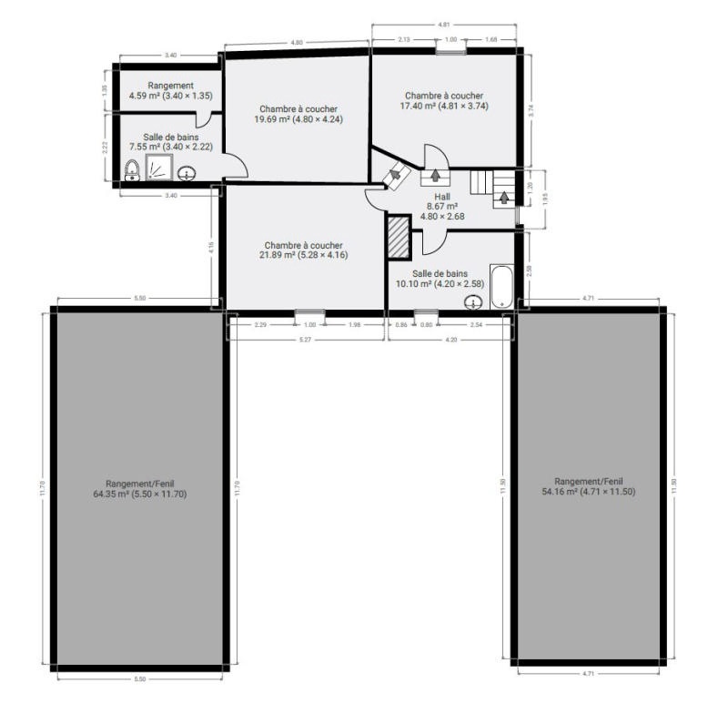
! OPTION ! OPTION ! Magnifique et spacieuse propriété de type « fermette » (+/- 270 m² d'après PEB) disposant de plusieurs dépendances (granges, étables, fenils) offrant de nombreuses possibilités idéalement située dans un endroit calme à Saive sur une belle parcelle de terrain (+/- 3.610m²) Elle se compose comme suit: Sous-sol : caves voûtées (+/- 24m²). Rez-de-chaussée : hall d’entrée (+/-18m²), bureau (+/-15m²), salon (+/- 18m²), salle à manger (+/- 21m²), cuisine (+/-12m²), toilette indépendante, buanderie, local chaufferie et garage (+/- 18m²). 1er étage : hall de nuit, 3 grandes chambres (+/- 17, 20 et 22m²), 2 salles de bains. 2ème étage : combles (grenier). Vous bénéficierez également de 2 granges de +/- 50m² au sol chacune éventuellement aménageables sur 2 niveaux (sous réserve des autorisations nécessaires). A l’extérieur : cour intérieure en pavés, terrasse bien orientée et un magnifique terrain. Chauffage central mazout, châssis double vitrage PVC. PEB : G, E Spéc: 581 kWh/m².an, E totale: 157.133 kWH/an, n° 20240503019729. R.C. de la partie habitation : 547€. Superficie terrain : 3.610m² Magnifique propriété de caractère dans un quartier calme ! Coup de cœur assuré ! Superbe potentiel! Informations données à titre indicatif et non contractuelles. www.waucomont.be

Classe énergétique Énergie spécifique Énergie totale Émission de CO2 PEB No.
G 581kWh/m².an 157133kWh.an 144kg CO2/an 20240503019729

Informations générales

  • Type de bien Maisons / Propriétés
  • Sous-catégorie Fermette
  • Disponibilité À l'acte
  • Etat À rafraîchir
  • Nombre d'étages 2
  • Nombre de façades 4

Informations sur l'extérieur

  • Surface parcellaire 3610,00 m²
  • Garage 1
  • Parking 4
  • Environnement Campagne non-isolée
  • Terrasse 1
  • Surface terrasse 1 15 m²

Informations sur l'intérieur

  • Surface habitable 270,00 m²
  • Cuisine Oui
  • Type de cuisine Equipement de base
  • Nombre de chambres 4
  • Nombre de salle de bain 2
  • Type d'énergie du chauffage Mazout

Informations financières

  • Revenu cadastral 547,00 €