Superbe maison 3ch avec jardin et terrasse à Beyne-Heusay

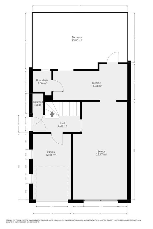
! OPTION ! OPTION ! OPTION ! Magnifique maison rénovée (+/- 133m² d'après PEB), 3 chambres avec jardin et terrasse idéalement située à Beyne-Heusay et proche de toutes les commodités. Elle se compose comme suit : Rez-de-chaussée : hall d’entrée avec wc indépendant, agréable séjour (+/- 25m²) avec cuisine ouverte (+/- 12m²) et arrière cuisine et un garage actuellement aménagé en pièce de rangement/buanderie. Au 1er étage : 3 chambres à coucher (+/-9, 11 et 14m²) et une salle de bains (douche, WC suspendu et double vasque). A l’extérieur : un spacieuse terrasse, un jardin bien entretenu et idéalement orienté et plusieurs emplacement de parking. Châssis double vitrage PVC avec volets, panneaux photovoltaïques, système d'alarme, caméra, système de chauffage : pompe à chaleur et poêle à pellets. Date de rénovation : 2020. R.C. : 840€, superficie totale parcelle : 373m². PEB: B, E Spéc: 111kWh/m².an, E totale : 17.717kWh/an, n° 202603170111258. Idéale pour jeune couple. Coup de coeur assuré! Informations données à titre indicatif et non contractuelles. www.waucomont.be
Classe énergétique Énergie spécifique Énergie totale Émission de CO2 PEB No.
B 111kWh/m².an 14717kWh.an 29kg CO2/an 20260317011258

Informations générales

  • Type de bien Maisons / Propriétés
  • Sous-catégorie Maison
  • Disponibilité Date à convenir
  • Etat Très bon
  • Rénovation 2020
  • Nombre d'étages 1
  • Nombre de façades 3

Informations sur l'extérieur

  • Surface parcellaire 373,00 m²
  • Garage 1
  • Parking 3
  • Environnement Campagne non-isolée
  • Terrasse 1
  • Surface terrasse 1 26 m²

Informations sur l'intérieur

  • Surface habitable 133,00 m²
  • Cuisine Oui
  • Type de cuisine Aménagée
  • Nombre de chambres 3
  • Nombre de salle de bain 1
  • Type d'énergie du chauffage Pompe à chaleur

Informations financières

  • Revenu cadastral 840,00 €