Superbe maison 3ch avec jardin!

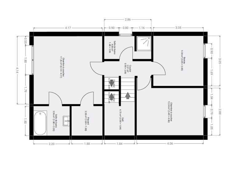
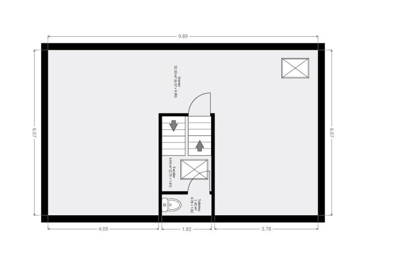
Superbe maison semi-mitoyenne (+/- 193m² d’après PEB), 3 chambres avec terrasse et jardin idéalement située à proximité de toutes les commodités à Limbourg. Elle se compose comme suit : Rez-de-chaussée : hall d’entrée, séjour +/- 30m² et wc indépendant. Un demi-niveau plus bas: cuisine équipée +/- 25m² (four, taque vitrocéramique, hotte, évier) avec accès direct à la terrasse et au jardin. Au 1er étage : suite parentale (+/- 17m²) avec salle de bains (baignoire, lavabo) et dressing, 2 chambres (+/- 9 et 12m²) et salle de douches (douche, double lavabo). Au 2ème étage : vaste grenier +/- 52m² (éventuellement aménageable). A l’extérieur : un joli jardin offrant une jolie vue dégagée sur la camapgne, une terrasse et des emplacements de parking. Chauffage sol via pompe à chaleur, châssis double vitrage aluminium. Construction de 2008. . PEB : C, E Spéc: 185 kWh/m².an, E totale 35.687 kWh/an, n°20230223026948. R.C. : 1.003€, superficie totale : 494 m². Informations données à titre indicatif et non contractuelles. Maison coup de cœur ! A découvrir! www.waucomont.be

Classe énergétique Énergie spécifique Énergie totale Émission de CO2 PEB No.
C 185kWh/m².an 35687kWh.an 53kg CO2/an 20230223026948

Informations générales

  • Type de bien Maisons / Propriétés
  • Sous-catégorie Maison
  • Disponibilité À l'acte
  • Etat Bon
  • Année de construction 2008
  • Nombre d'étages 0
  • Nombre de façades 3

Informations sur l'extérieur

  • Surface parcellaire 494,00 m²
  • Parking 3
  • Environnement Campagne non-isolée
  • Terrasse 1
  • Surface terrasse 1 25 m²

Informations sur l'intérieur

  • Surface habitable 193,00 m²
  • Cuisine Oui
  • Type de cuisine Equipée et aménagée
  • Nombre de chambres 3
  • Nombre de salle de bain 2
  • Type d'énergie du chauffage Pompe à chaleur

Informations financières

  • Revenu cadastral 1003,00 €